L'architecte Irit Axelrod transforme un vaste appartement de 200 mètres carrés, asymétrique et défini par la créatrice comme "une coquille pleine de lumière", en un loft moderne qui met à nu la structure originale: le plafond en béton brut, un pilier structurel massif, le système électrique et les conduits de ventilation sont laissés apparents. La conception du loft à Tel Aviv est la création d'une résidence adaptée au style de vie du propriétaire, ainsi que la vitrine parfaite pour ses collections de livres et d'art


Maison d'exposition d'art dans l'ancienne clinique Zamenhof de Tel Aviv: un loft de style Bauhaus
Un loft de estilo Bauhaus situé dans le bâtiment emblématique de la Clinique Zamenhof à Tel Aviv, dont la forme a été préservée lors de la transformation du bâtiment du XXIe siècle en un complexe résidentiel de luxe
- #Asie>
- #Israël>
- #Architecture>
- #Rénovation>
- #Résidence>
- #Loft>
- #Restylage>
- #Intérieur>
- #Design d’intérieur>

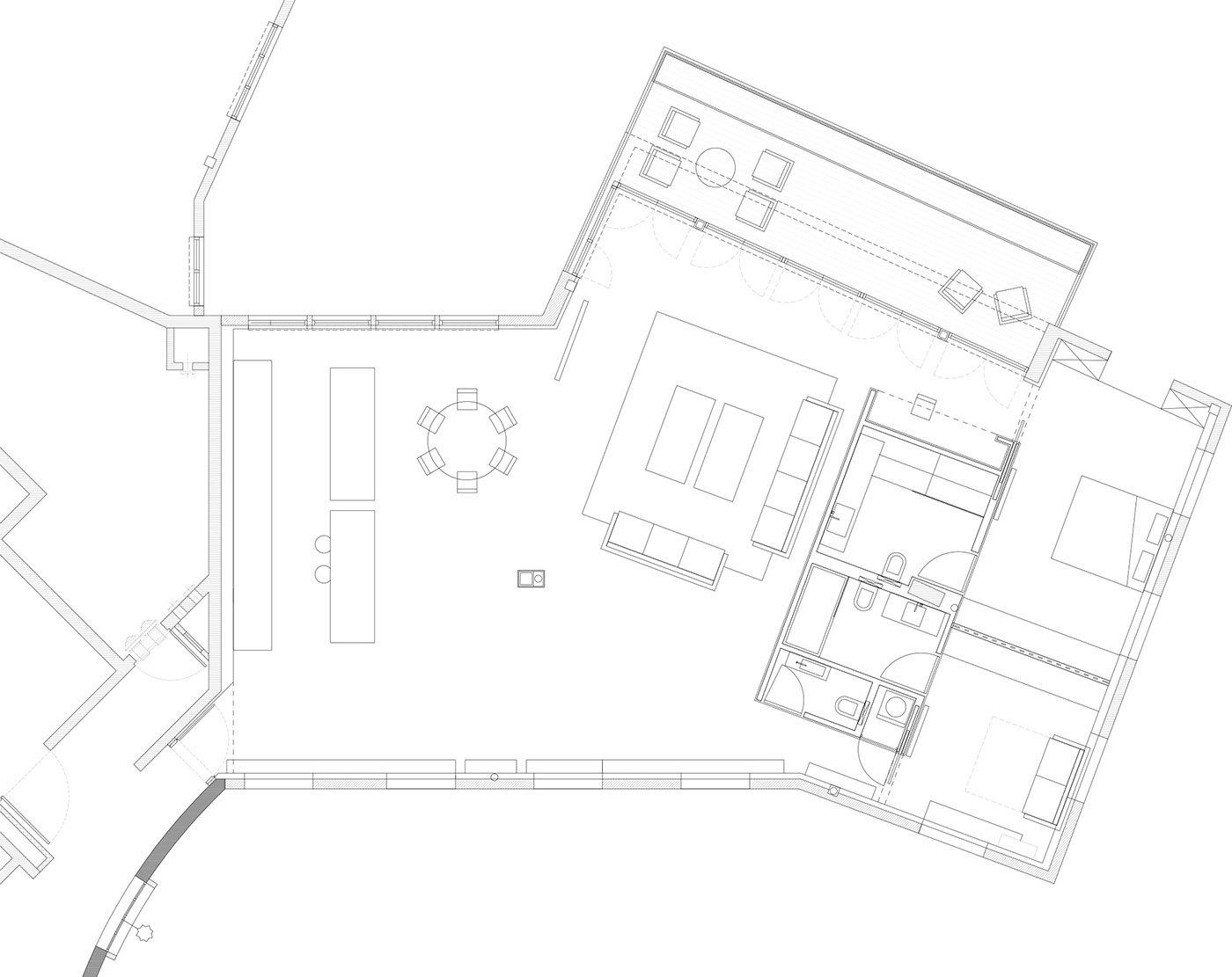
Confrontée à un espace aux angles abstraits dans un bâtiment non orthogonal, Axelrod a choisi de "surimprimer" les angles, le considérant comme une seule pièce envahie par un volume autoportant patiné en noir. Le bloc semble flotter dans l'espace, se détachant de tous les murs périphériques du loft; l'un de ses longs côtés sert de toile de fond à la zone de séjour, agissant comme une scénographie pour les œuvres d'art, tout en dissimulant toutes les installations de la résidence à l'intérieur: les salles de bains élégantes pour les invités et le propriétaire, la buanderie et un espace de stockage

La vaste chambre principale et la chambre d'invités, situées dans l'espace ouvert au-delà de la boîte noire, sont séparées par une armoire sur mesure sur laquelle s'étend un mur de verre jusqu'au plafond pour garantir une intimité totale tout en maintenant la fluidité de l'espace. Les portes pleine hauteur séparant les chambres de la zone de séjour sont des portes coulissantes dissimulées dans le volume noir. Caché du quatrième côté du bloc patiné, une œuvre d'art en soi, il y a un coin bureau encastré éclairé naturellement par la lumière qui entre par les grandes fenêtres donnant sur la terrasse

La répétition presque ininterrompue et équidistante des fenêtres sur les murs périphériques du loft, héritage de la fonction de clinique médicale pour laquelle le bâtiment a été conçu, constitue le deuxième défi du projet: Axelrod imagine un système simple d'étagères noires qui interagit de manière sculpturale avec l'uniformité des fenêtres, agissant comme un présentoir pour les livres et les œuvres d'art. Le jeu de matériaux et de finitions noirs, blancs et gris est adouci par les sols en chêne brun, dont le motif en chevrons fait écho et défie les angles orthogonaux du loft, tout en adoucissant son ambiance. En revanche, les îlots de cuisine en acier inoxydable et les armoires en aluminium rehaussent l'aspect industriel

L'éclairage est un élément clé du design de ce loft; les lumières sont conçues pour suivre et souligner l'architecture et la disposition, ajoutant des ombres et des effets de clair-obscur au crépuscule.
Les lignes épurées, l'espace ouvert et la palette limitée de couleurs reflètent la personnalité du propriétaire, lui offrant un espace qui est à la fois foyer et galerie, préservé du chaos extérieur du quartier de Tel Aviv où se trouve le bâtiment. Un quartier bruyant, encombré et assez fatigué de la ville où la régénération urbaine progresse un bâtiment à la fois

Gallery
Crédits photos
Image de couverture, images du contenu et de la galerie: Amit Geron
Dessins: Axelrod Architects












