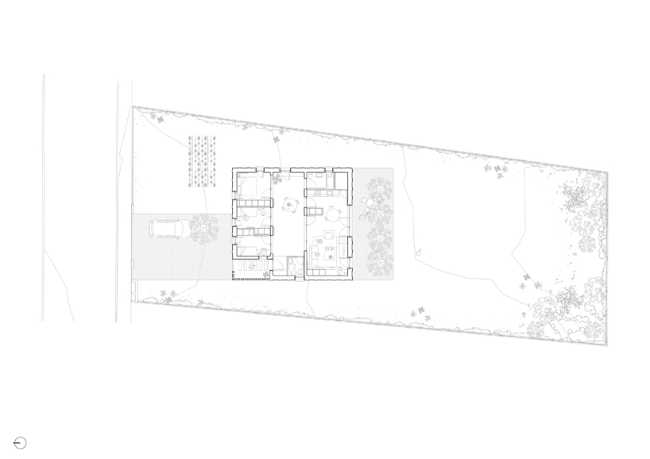
L'espace central de la Maison : Atrium bioclimatique
Les concepteurs de Slow Studio, un studio spécialisé dans les projets architecturaux écologiques, envisagent un espace central qui capte la lumière et la chaleur. Pour la Casa en Massís del Garraf, cet espace est créé sous la forme d'un atrium couvert avec des ouvertures au sud dans la partie qui s'élève au-dessus du toit : les pièces sont organisées autour de cet atrium bioclimatique. L'espace central à double hauteur accumule la chaleur grâce à une ouverture supérieure au sud et permet de tempérer les pièces dans la zone nord et de générer une ventilation croisée.























