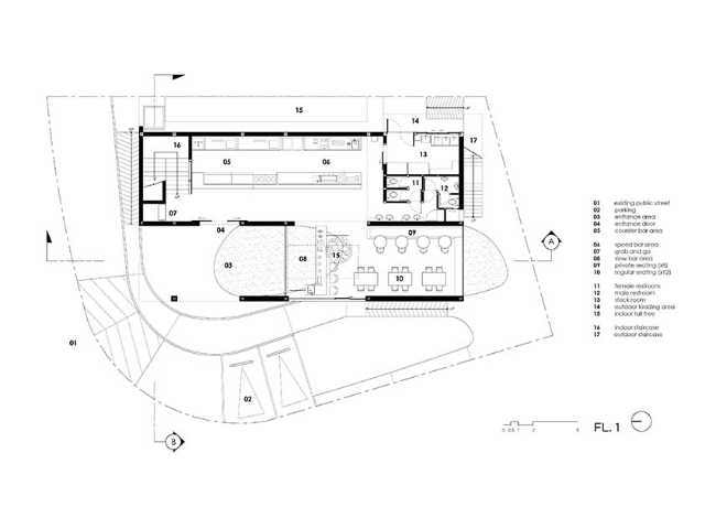
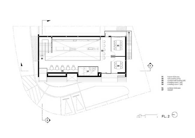
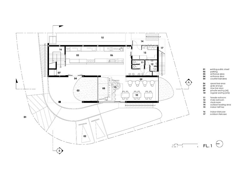
Cathédrales, bouledogues français et croissants
Une image ludique mais élégante est ce que le propriétaire souhaite pour son café et que le cabinet de Bankok TOUCH Architect réussit parfaitement à créer en travaillant sur le nom même de l'établissement: French Kitsch III. Le concept de "french" se retrouve dans la pâtisserie, dans l'image de marque des aimés bouledogues français et dans la forme architecturale de l'arc choisie par les concepteurs pour évoquer les cathédrales françaises























