Modularité BIM et inspiration infantile
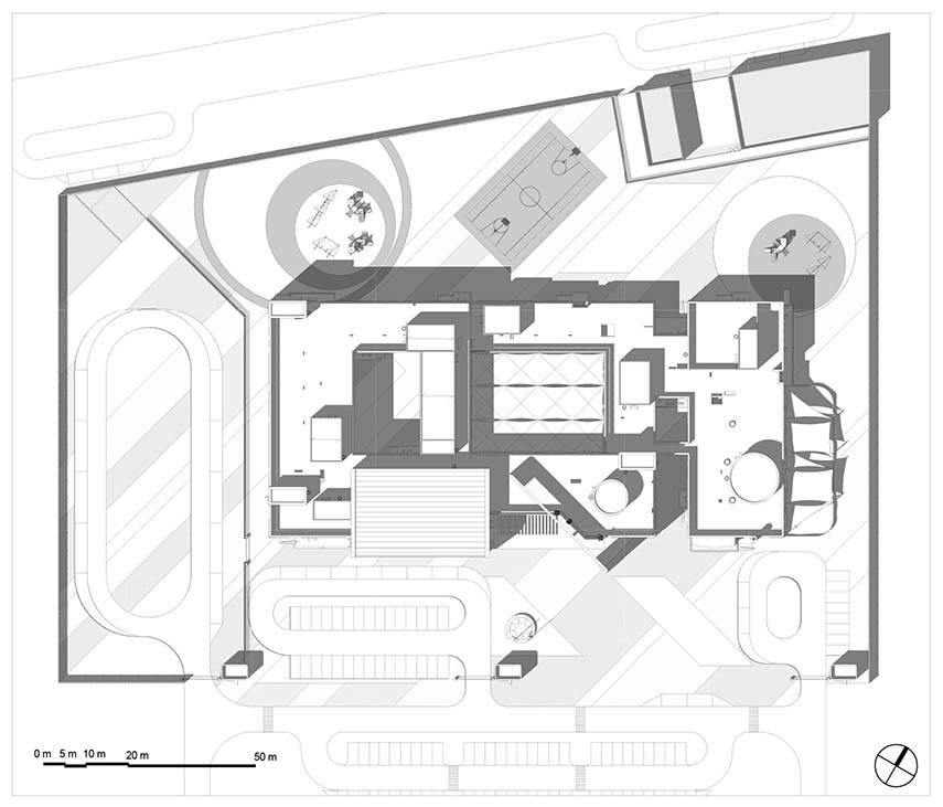
Un complexe scolaire conçu pour accueillir des filles dans la petite localité d'Al-Laseeli, au sud de Dubaï. Le projet, signé par le Groupe UPA, se distingue par le fait d'être le premier bâtiment public conçu en BIM aux Émirats arabes unis. La rigidité du module de 1,5 mètre se traduit par un système architectural ludique, composé de volumes blancs, de géométries colorées et de cours comme espaces centraux de la vie scolaire. Le module de 1,5 mètre, contrainte imposée par le Ministère des Infrastructures et du Développement, devient la base d'un langage architectural ludique. Les façades blanches en aluminium transforment l'ensemble du bâtiment en une sorte de grand cahier à carreaux. Les cadres colorés des fenêtres, qui se détachent du plan de façade, rompent la rigidité compositionnelle, suggérant un jeu de formes conçu pour stimuler la perception et la curiosité des plus jeunes.















