Le projet de l'architecte Fabian Tan pour la Makio House, située sur un terrain d'angle dans un quartier privé de la capitale malaisienne, vise à intégrer une importante matérialité dans l'espace d'origine pour enrichir l'expérience de l'espace: en unifiant les éléments architecturaux d'origine de la maison à travers le revêtement de panneaux de bois massif, l'architecte crée un nouvel élément matériel distinctif qui devient l'axe de la maison, l'escalier reliant la mezzanine et le premier étage


L'architecture utilise les matériaux en bois pour intensifier l'expérience de l'espace: la nouvelle Makio House
Makio House est à la fois minimaliste et confortable, un reflet de la personnalité du client. Un espace qui embrasse la lumière et les vues sur le skyline de Kuala Lumpur

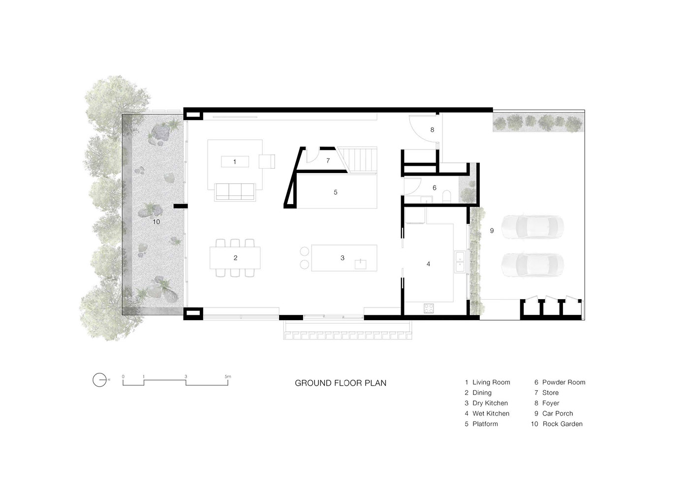
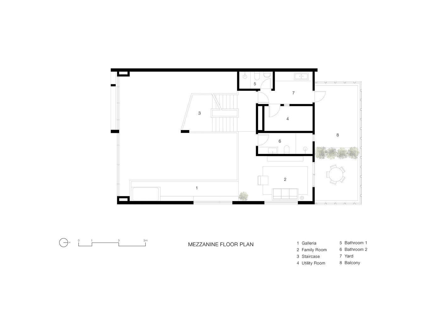
La continuité du matériau est également préservée dans la mezzanine avec l'ajout d'une galerie qui prolonge le sol existant et enveloppe la périphérie des espaces habitables à double hauteur. Cet espace fonctionne comme une passerelle équipée d'étagères et de placards de rangement, éclairée par de grandes baies vitrées. À l'extrémité de la galerie, se trouve une zone de jour/studio qui semble flotter et offre une vue sur les cimes des arbres. Le jardin a été transformé en un jardin de roches sculptées offrant un refuge paisible

La chambre principale a été agrandie aux dépens d'une autre chambre existante afin de créer un environnement à aire ouverte. Les murs intérieurs ici ont été intentionnellement construits plus bas que la hauteur du plafond pour permettre à la lumière de se répandre dans toute la pièce. Cette atmosphère lumineuse amplifie la perception d'un espace en expansion. La chambre d'enfant est réimaginée comme un jeu de cache-cache à plusieurs niveaux : un lit superposé à 3 étages avec un lit gigogne et une cachette d'où l'on peut regarder à travers une lucarne existante

Un escalier en acier a été ajouté dans le patio intérieur pour relier la maison au toit où s'ouvre un nouveau salon extérieur avec vue sur le panorama de la ville. Dans l'ensemble, la conception de l'architecte Fabian Tan pour la Makio House est une entrelacement d'échos d'érable et de marbre blanc, avec des éléments existants et avec la nature afin d'offrir un environnement équilibré et serein

Gallery
Crédits photos
Image du haut, images du contenu et de la galerie: Ceavs Chua of BricksBegin

















