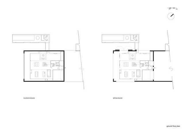
Un nouveau type de murs extérieurs mobiles
Lauréat de nombreux prix pour ses projets d'architecture, le studio polonais Robert Konieczny KWK Promes est appelé à concevoir la Safe House, grâce à laquelle il invente un nouveau type de murs extérieurs mobiles. La maison a la forme d'un cuboïde avec deux zones extérieures de sécurité: lorsqu'elle est fermée, par exemple la nuit, la zone sécurisée est limitée à l'environnement immédiat de la maison; le jour, en revanche, en ouvrant les murs mobiles, la zone praticable s'étend au jardin entourant la maison























