Architect Forcinito's position when faced with the task of developing a project for a hospitality facility in a place far from urban centers like Uman Lodge is to try and generate a unique experience through the act of living while challenging through the architecture and its positioning in the environment


Uman Lodge in Chile, wooden textures and breathtaking views
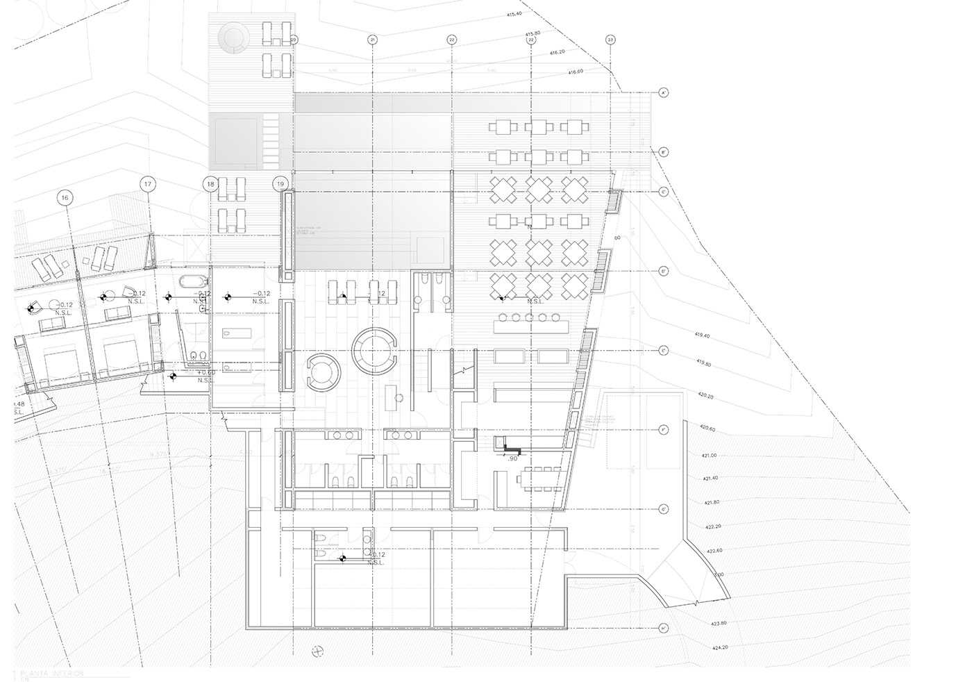
Uman Lodge is a 16-unit hotel in Chile where the purpose of the housing experience is to enjoy the immeasurable spectacle of nature
- #Amérique du Nord>
- #Chili>
- #Architecture>
- #Nouvelle construction>
- #Hotels>
- #Hôtel>
- #Bois>
- #Verre>
- #Pierre>
- #Architecture>

Here, in the case of the Uman Lodge, it was a matter of finding a location within the terrain in Futaleufú (Chile) from where the guest could be astonished with the panorama provided by the confluence of the two rivers Futaleufu and Espolón

Thus, the location of the Uman Lodge was determined by the architect Forcinito on some cliffs that would have enabled the reading of the macro landscape with distant views encompassing the entire valley. The fan-shaped positioning of the project adapts to the topography, where the small volumes of the services are inserted in the rocky hollows and a conformation of the rooms is proposed that stimulates the entrance of the landscape inside the units

The spaces are then oriented according to the views and the paths move towards the rear of the complex, leaving the spectacular viewpoint towards the valley free. On the other hand, the main body that contains the common services and the rooms of the units stands out through an intentional contrast that is resolved with a simple and pure language, but with an envelope of wood texture that directly alludes to a traditional local tectonics

Gallery
Drawings: Forcinito Arquitectos
Photo credits
Top image, content and gallery images: Uman Lodge

















