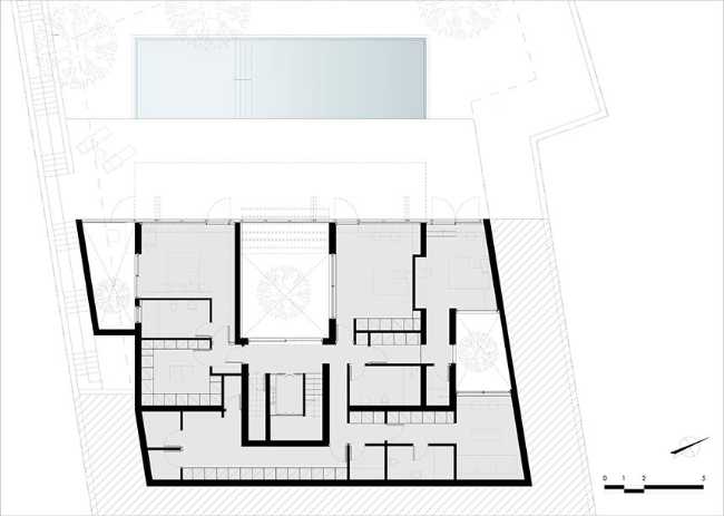
La vue comme élément architectural
Le cabinet d'architecture ARISTIDES DALLAS est appelé à concevoir une résidence de grandes dimensions, sur un terrain caractérisé par une forte pente et entouré d'une végétation dense. La configuration du terrain permet d'exploiter la magnifique vue comme élément architectural prédominant























