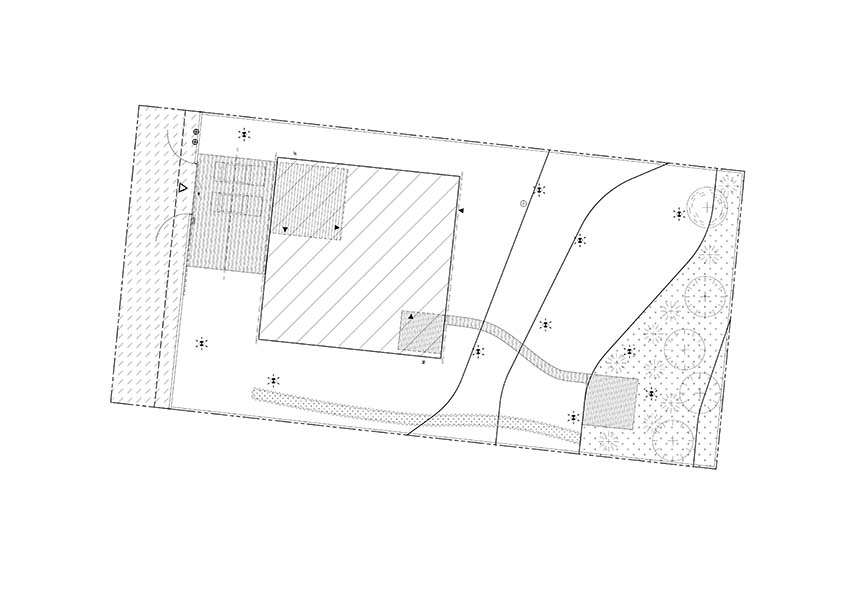
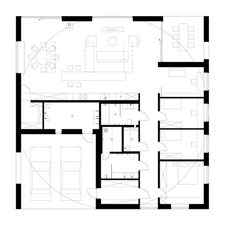
Un cuadrado de 18 metros por lado
025 Concrete Home es uno de los últimos proyectos de arquitectura residencial del estudio lituano ŠA Atelier. Se desarrolla en una superficie de 215 metros cuadrados, ocupando un área cuadrada de 18 metros por lado. La forma sobria del edificio se debe al futuro arquitectónico impredecible del vecindario, con el cual se busca un diálogo formal satisfactorio, y a la necesidad del cliente de tener la vivienda en un solo nivel






















