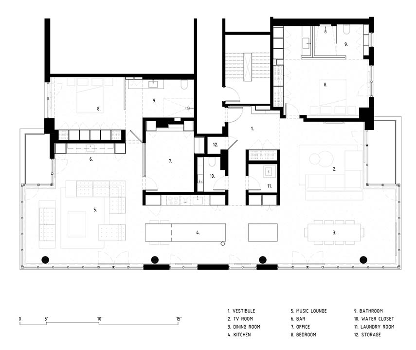
Un chalet urbano en el noveno piso que ofrece una experiencia visual inmersiva
Dan y Jay llaman a MXMA Architecture & Design y a Patrick St-Onge Habitat para dar vida a su nuevo y más grande chalet urbano, cuidadosamente diseñado para reflejar su estilo de vida, donde pueden instalarse cómodamente en sus frecuentes escapadas de Toronto a Montreal. Abierto en tres lados, con una exposición de este a oeste, el apartamento Party of Two ofrece una vista panorámica de 180 grados y una experiencia visual inmersiva y especial
























