La cabaña como forma expresiva de tradición y modernidad
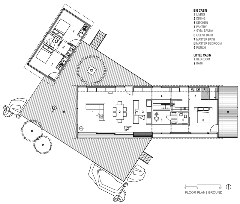
La palabra "cabaña" logra evocar una variedad de imágenes románticas: un lugar donde reunir a la familia, descansar en la naturaleza después de un largo día, calentarse las manos frente al fuego. La cabaña de Renée del Gaudio Architecture, reconocido estudio de proyectos de arquitectura especializado en armonizar los espacios con su entorno, busca encarnar el carácter y la sensación de una cabaña tradicional en un marco puramente moderno.




















