Durante el proceso de reestructuración el apartamento fue despojado devariosestratos de la casa hasta que se encontraron los ladrillos originales en las paredes o la cerámica en el techo. En cada intervención se intenta equilibrar los lenguajes constructivos de lo viejo y lo nuevo, construcción en seco a base de marcos de roble y plafones de madera pintada


Apartamento centenario en Barcelona. Equilibrio entre lenguajes constructivosviejos y nuevos
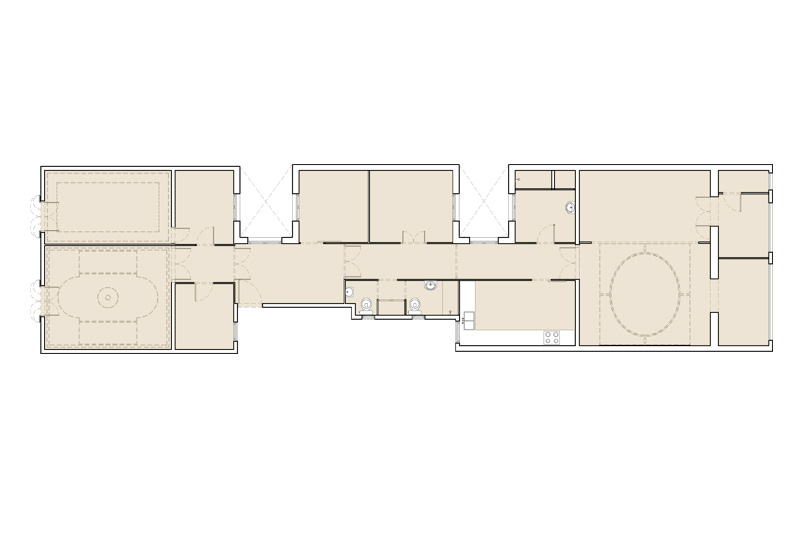
El estudio TwoBo Arquitectura reestructura un apartamento de 120 años, conservando elementos característicos originales como los pisos de mosaico y las molduras de techo, y eliminando las numerosas particiones internas de la distribución original
- #Europa>
- #España>
- #Recuperación del edificio>
- #Apartamento>
- #Metal>
- #Madera>
- #Piedra>
- #Cerámica>
- #Interior>
- #Architectures>
- #Diseño de interiores>

La planta está tratada simétricamente: en los extremos hay dos espacios que conservan el piso original y las molduras de la distribución original. Por un lado, la habitación principal con baño, por el otro están el comedor, la cocina y la sala. En el centro se enfatiza más la construcción original, dejando las paredes de ladrillo, las ventanas originales o las vigas de hierro













