El arquitecto RiccardoBucci reinterpreta en óptica contemporánea los caracteres tradicionales de los edificios agrícolas de la campiña de Las Marcas y la relación con la fortaleza medieval, totalmente preservada, es la "condición sine qua non" de las elecciones de diseño de toda la intervención realizada en Offagna, en la provincia de Ancona


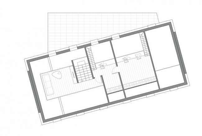
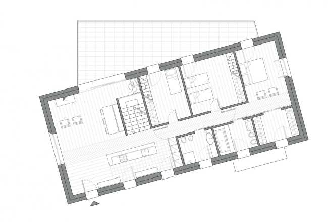
Vivienda unifamiliar de madera en la provincia de Ancona. Arquitectura y tecnología
El edificio unifamiliar sostenible gracias a elecciones energéticas precisas se coloca cerca de las paredes de la aldea medieval de Offagna, en la provincia de Ancona. El arquitecto RiccardoBucci utiliza tecnologías innovadoras en el envolvente
- #Europa>
- #Italia>
- #Vivienda>
- #Nueva construccion>
- #Madera>
- #Cemento>
- #Architectures>
- #Arquitectura>

El posicionamiento del edificio fue uno de los primeros desafíos enfrentados: un estudio detallado de la exposición al sol identificó la posición óptima con respecto al área de la propiedad donde era posible construir; de hecho, el terreno se encuentra en la zona norte de la colina de la aldea, por lo que sufre una exposición bastante débil a la luz solar durante los meses de invierno, tanto que algunas áreas, en estos períodos, no son alcanzadas por la luz solar

Eliminando las áreas permanentemente en sombra y, en consecuencia, delinear la mejor posición, comienza el proyecto para el diseño arquitectónico del edificio, considerando el espacio externo de la casa como una continuación natural y vital de los ambientes internos. Un solo volumen continuo simple delinea fuertemente el aspecto arquitectónico de la casa, recordando la linealidad de su sistema típico de las construcciones de las áreas agrícolas de Las Marcas

Dentro de esta compacidad del volumen, se expresa la laboriosidad de la composición, en la que toman forma dos cajas que parecen superpuestas entre sí, a través de una marcada diferenciación de los materiales y un fuerte cambio en la inclinación de las pendientes

Dos volúmenes, por tanto, vinculados entre sí a través de una sola línea que los une y los divide. El volumen a continuación, enlucido en el color suave que define el vínculo al suelo y los principales espacios interiores de la casa. El volumen superpuesto, completamente recubierto, tanto en la fachada como en el techo, con tejas de terracota con un módulo de 16x48 cm, de tono rojizo, un material que recuerda indisolublemente el vínculo con los personajes de la tradición local de la construcción

La línea de demarcación, que organiza todo con precisión geométrica y simultáneamente resuelve problemas técnicos como la recolección de agua de lluvia: en los lados cortos del edificio se presenta con una pendiente claramente delineada, cuya inclinación permite alcanzar alturas mucho más bajas que la cresta; en los frentes largos del edificio se traza, con una sola marca horizontal, las alturas de las aperturas que se presentan con el mismo módulo y cadencia en ambos frentes

La única excepción a la exploración rítmica, una gran ventana hacia el norte que le permite disfrutar del paisaje abierto y montañoso, que se abre hacia el mar, desde la sala de estar de la casa y desde la terraza, en un fuerte saliente con respecto al sótano. Los edificios se caracterizan por una sola apertura en cada lado, cuadrada y grande, equipada con una plataforma, en referencia a numerosas arquitecturas tradicionales

La importancia de un diálogo respetuoso con el entorno natural ha guiado la intervención desde la elección de todo el sistema de construcción: estructura de madera que permite el montaje en seco de todos sus componentes y la ausencia de pegamentos en el interior de las paredes

Las dos cajas también tienen diferentes sistemas de aislamiento: revestimiento con materiales naturales como corcho y fibra de madera para la base de yeso, pared ventilada y techo para la parte cubierta de terracota. La superficie de la terracota ventilada, también utilizada en el techo, evita una fuerte radiación directa en los pisos subyacentes, ha permitido la inserción de paneles fotovoltaicos coplanarios con el techo, minimizando el impacto

Además del entorno natural, la auténtica integración lograda con la historia del lugar donde se inserta, en una relación dialéctica entre tradición e innovación, ha significado que la presencia de una rocca medieval a pocos metros ha influido mucho en la elección de la terracota como material característico, con la posibilidad de crear una comparación directa a pesar de ser edificios de diferentes connotaciones y períodos

El arquitecto RiccardoBucci elimina en vez de agregar, simplifica los gestos compositivos, reduce a un solo signo arquitectónico, pero al mismo tiempotambién funcional y tecnológico, resolviendo así la complejidad que contiene el proyecto, polarizándolo completamente en la fase de diseño y obteniendo un edificio con apariencia esencial y riguroso


















