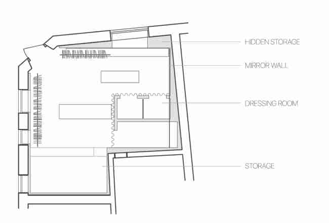
Ante la complejidad e irregularidad geométrica de la planta, los arquitectos decidieron basar su diseño en el eje de las líneas paralelas y perpendiculares del suelo, instalando ventanas de cristal sin marcos montadas en paredes enderezadas con placas de cartón yeso


Sala de exposiciones y sastrería en Kiev. Formas simples en una planta histórica de geometría compleja
Syndacate es una sala de exposiciones y un taller de sastrería situado en Kiev, Ucrania, y diseñado por el estudio balbek bureau. Ubicada en un edificio antiguo, con paredes irregulares y espacios reducidos, está inteligentemente diseñada
- #Europa>
- #Ucrania>
- #Recuperación del edificio>
- #Tienda>
- #Interior>
- #Architectures>
- #Diseño de interiores>

Los únicos elementos originales que quedan son el viejo suelo de terracota y el techo, de listones y enyesado, que han sido cuidadosamente desempolvados y limpiados. El resultado es un perímetro con paredes blancas uniformes, formas simples y ángulos rectos

Galeria
Foto: Slava Balbek, Yevhenii Avramenko

















