El Atelier Mass, para el diseño de Ursuletul Nursery, parte de la idea de un espacio amplio, luminoso y con colores pastel, libre de los clichés típicos de los espacios para niños, para invitar a la exploración física e imaginativa del niño. La separación funcional se convierte en diálogo, disolviendo las divisiones habituales entre espacios privados y de grupo, entre interior y exterior, arriba y abajo. La arquitectura es simple y funcional; los colores se utilizan para inducir un ambiente tranquilo y positivo, empleando materiales naturales. Los muebles están concebidos como personajes abstractos que pueblan este primer mundo interior de los niños


Ursuletul Nursery: un espacio amplio y luminoso, libre de los clichés de las estructuras para la infancia
La experiencia de la primera infancia influye fuertemente en los patrones de percepción que nos acompañan durante toda la vida, y esto hace que el ambiente en el que vivimos y cómo condiciona nuestras interacciones sea importante. De este principio surge el concepto para la ampliación de Ursuletul Nursery en Cluj, Rumania
- #Europa>
- #Rumanía>
- #Arquitectura>
- #Educación>
- #Preescolar>
- #Ampliación del edificio>
- #Diseño>
- #Arquitectura>

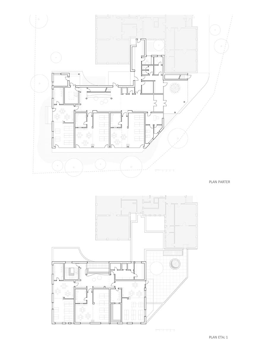
La oportunidad de experimentar una nueva forma de diseñar escuelas infantiles surge en la ampliación encargada por la administración local del jardín de infancia Ursulețul, en el barrio Mănăștur de Cluj-Napoca. El sitio está rodeado de viviendas colectivas construidas con paneles prefabricados, típicas de los microdistritos de los años 70. A pesar de esto, la cercanía del bosque y la exuberante vegetación le confieren una atmósfera pintoresca y protectora. El edificio existente ocupa el centro del lote, mientras que la ampliación se encuentra en el terreno libre disponible junto a un pasaje peatonal y a un amplio espacio verde

La necesidad consiste en albergar 6 nuevas aulas, duplicando la capacidad de la escuela, así como ubicar las oficinas administrativas en los pisos superiores. Para dar cabida a todas estas funciones, surge el concepto de un volumen compacto y unitario con una silueta familiar y lúdica: una casa inusual entre los bloques del barrio, frente a la pendiente boscosa. Un tetris espacial donde las funciones se entrecruzan verticalmente para generar geometrías inesperadas: los espacios colectivos se extienden hacia arriba hasta el piso de las oficinas, amplificando la sensación de espacio y luz. Los lucernarios añaden una quinta fachada al espacio interior, convirtiendo el techo en un lienzo sobre el cual proyectar la imaginación

Las particiones son transitorias: paredes removibles y separadores textiles son los pilares de una escenografía donde el espacio siempre se ajusta según las necesidades. La apertura hacia la naturaleza fue un tema fundamental del proyecto: el volumen desarrolla su relación con el exterior a través del acceso directo al patio desde cada aula, y en el piso superior mediante el enmarcado del paisaje, el cielo. La amplia terraza sobre la entrada principal crea un patio para las salas en el piso superior y reduce la silueta percibida del edificio, rompiendo la monotonía de la estructura y generando una apertura hacia el bosque de Făget

Galeria
Créditos Fotográficos
Imagen de portada, imágenes artículo y gallery: Silviu Aldea
Diseños: Atelier MASS
Créditos diseñadores
Arhitecture: Atelier MASS - Silviu Aldea, Tamás Sisak, Verona Musteață
Interior Design and Furniture: Atelier MASS - Silviu Aldea, Camelia Sisak, Verona Musteață
Créditos empresas
Structure: MAGO PROJECT – Gheorghe CHIOREAN
Installations: GRADINSTAL – Paul BIRIȘ
Furniture: NURB - Eduard Tuca

















