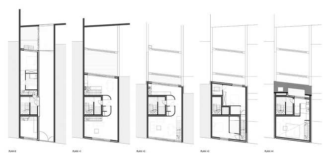
Tres apartamentos muy luminosos tienen lugar en el edificio. Cada uno tiene una vista de la calle y una terraza en la parte posterior, con grandes espacios de vida


Apartamentos con las cualidades de una casa. Grandes espacios de vida en un edificio antiguo
En Amberes, ciudad belga, tres apartamentos están diseñados en un edificio antiguo y espacioso por Poot Architectuur, con la idea de proporcionar a cada uno todas las comodidades y cualidades de una casa
- #Europa>
- #Bélgica>
- #Condominio>
- #Recuperación del edificio>
- #Ladrillo>
- #Architectures>
- #Diseño de interiores>

El apartamento, gracias a su gran tamaño, tiene todas las cualidades de una casa. Para la fachada, se utiliza la piedra y ventanas blancas, haciendo referencia a las casas grandes y para armonizar con las casas adyacentes










