El arquitecto Rocco Valentini diseña junto con su equipo: El arquitecto Rocco Valentini reestructura en Chieti, en Abruzos, una villa residencial que respeta la tradición y utiliza materiales y elementos clásicos típicos de la arquitectura local


Recuperación de Villa en Chieti. La transformación que pasa por la piedra, el ladrillo y la madera.
El arquitecto Rocco Valentini reestructura en Chieti, en Abruzos, realiza una villa residencial que renueva una casa de principios del siglo XX y vuelve a proponer los elementos típicos de la arquitectura local
- #Italia>
- #Europa>
- #Edificio histórico>
- #Villa>
- #Recuperación del edificio>
- #Madera>
- #Piedra>
- #Vidrio>
- #Architectures>
- #Renovacion>

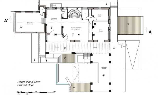
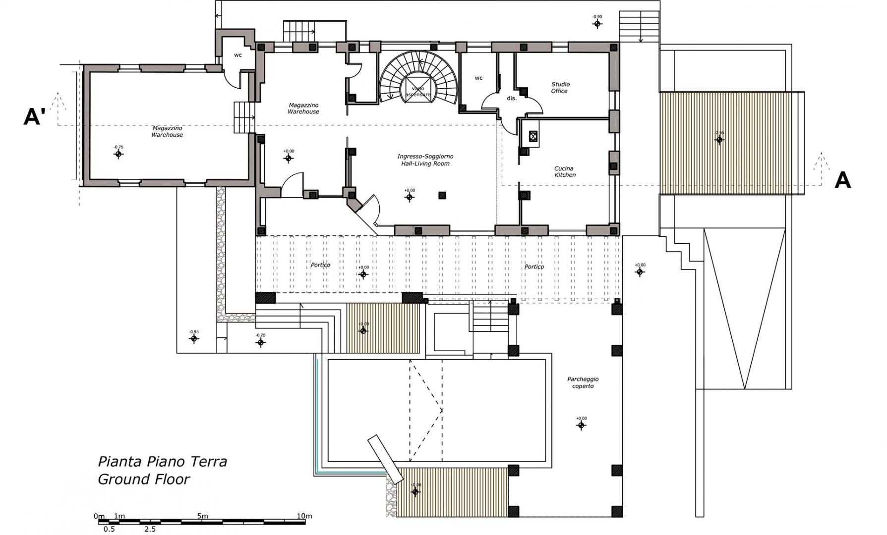
Una villa nacida de las cenizas de una casa de principios del siglo XX, demolida debido a la sequía estática, caracterizada por la reutilización de un conjunto de íconos clásicos y edificios típicos de las zonas rurales de Abruzos, el arco, la columna, el granero

La villa se desarrolla alrededor de una piscina, un espacio abierto en el lado sur, delimitado al oeste por una antigua iglesia dedicada a San Juan Bautista, al oeste por la villa y al este por el pórtico inspirado en los antiguos graneros

Los materiales utilizados en la construcción del edificio son los típicos locales, la piedra arenisca, el ladrillo, la madera soportada por el uso de vidrio y acero corten

La restauración arquitectónica se integra con la innovación tecnológica, utilizando un sistema de paneles solares fotovoltaicos para la producción de energía

El estudio de arquitectura Valentini diseña una villa residencial que recuerda elementos de la arquitectura clásica, como el triángulo y el arco, mezclándolos con los materiales típicos de la tradición arquitectónica rural, como la piedra seca para las paredes, la armadura de madera para el techo del pórtico que muestra en el imaginario la técnica de construcción del granero
















