Il progetto, un edificio a tre piani, è situato in un'area cementizia abbandonata. Lo spazio complessivo è caratterizzato da linguaggi concisi e semplicistici. Il design ripensa ciò che la casa significa per noi. È un luogo fisicamente statico, uno spazio spirituale che tocca e accoglie la mente


Villa dalla forma cilindrica in Cina. Cemento grezzo e legno per un design austero
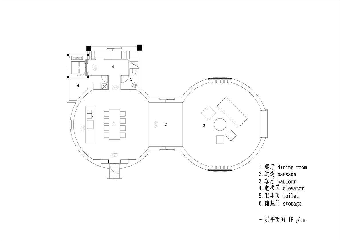
Due aree rotonde unite da un corridoio definiscono il progetto elaborato da ZMY Design. Soffitto in cemento grezzo, pavimento in legno di rovere e pareti rifinite con polvere di guscio e terra mescolata esprimono il carattere austero dei villaggi cinesi
- #Asie>
- #Chine>
- #Nouvelle construction>
- #Villa>
- #Bois>
- #Béton>
- #Pierre>
- #Enduit>
- #Architectures>
- #Architecture>

Due aree rotonde sono rispettivamente utilizzate per la sala da pranzo aperta e il salotto, che sono implicitamente separati da un passaggio con pavimento sopraelevato e soffitto abbassato. Il salone conserva l'originale soffitto in cemento grezzo, con il pavimento rivestito in legno di rovere strutturato. Le sue pareti sono rifinite con polvere di guscio e terra mescolata dal progettista stesso, che portano il carattere austero dei villaggi cinesi

Elementi naturali tra cui pietre, terra, legno e piante sono incorporati nello spazio, insieme producono un ambiente unico. Le proporzioni, gli angoli e le griglie delle aperture delle finestre sono i disposti in modo che la luce solare filtri nello spazio e si muova lentamente sul pavimento e mobili, cambiando costantemente la luce e le ombre

Gli oggetti all’interno della casa sono minimizzati per quanto possibile. L'intero spazio è dominato da un tono naturale, con strisce di luce che completano l’atmosfera spaziale. Per il Designer la casa è il posto più intimo, che non ha bisogno di portare le complesse aspettative del mondo esterno. Fornisce un ambiente tranquillo che libera sia il corpo che la mente, e un luogo per lasciare che le emozioni attecchiscano















