150 Melides : une résidence contemporaine entre nature et design fonctionnel
150 Melides : une résidence contemporaine entre nature et design fonctionnel

150 Melides : une résidence contemporaine entre nature et design fonctionnel

150 Melides est un projet de José Adrião Architects qui représente une synthèse raffinée entre l'architecture contemporaine et le respect du paysage portugais. L'œuvre s'inspire de la nature locale et intègre des espaces intérieurs conçus pour garantir luminosité, confort et durabilité. Chaque détail est étudié pour créer un dialogue harmonieux entre la résidence et le contexte naturel, en utilisant des matériaux innovants et des solutions écologiques pour améliorer la qualité de vie et valoriser l'environnement environnant.



Une architecture qui valorise le contexte naturel

Le projet se développe sur un terrain plat à quelques kilomètres de la côte atlantique portugaise, une zone caractérisée par des implantations dispersées et des terrains de différentes tailles. Cette zone, initialement agricole et forestière, confère au projet un lien fort avec la nature environnante, en réinterprétant l'essence du paysage local à travers une architecture respectueuse des règles de gestion du territoire.

150 Melides : une résidence contemporaine entre nature et design fonctionnel

Quinta das Oliveiras: une restauration consciente

Quinta das Oliveiras, la zone du projet, comprenait à l'origine une petite zone cultivée, une pinède et un groupe de bâtiments de qualité de construction médiocre. Les réglementations territoriales ont défini l'approche du projet : les bâtiments existants ne pouvaient être que démolis et reconstruits, en respectant les périmètres d'origine. Cette limite a représenté un défi, mais aussi un guide pour la création d'un espace qui conserve le caractère rural de la région, revisité avec des solutions modernes et durables, comme proposé par José Adrião Architects.

150 Melides : une résidence contemporaine entre nature et design fonctionnel

La conception des espaces intérieurs : la lumière et le confort comme protagonistes

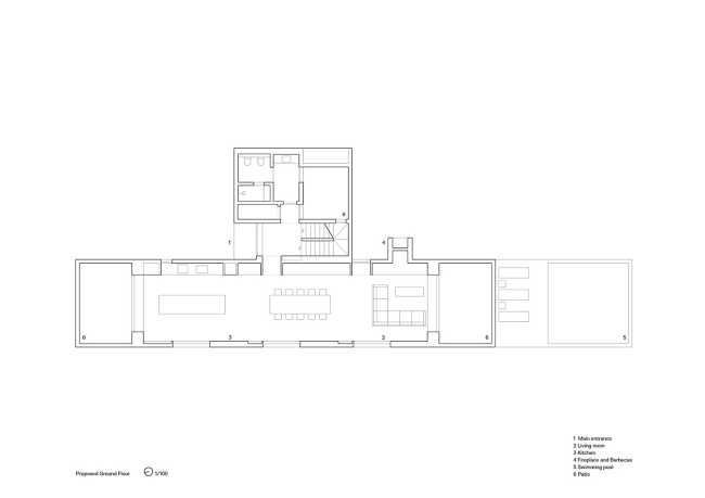
Le design intérieur de 150 Melides a été soigneusement développé par José Adrião Architects pour répondre à la configuration des espaces et aux besoins de confort, en faisant de la lumière naturelle et de la ventilation des éléments centraux. Le projet se structure en deux volumes interconnectés : un long et horizontal, qui abrite la cuisine, la salle à manger et le salon dans un espace ouvert, et un volume plus haut et cubique, qui accueille les escaliers menant à la chambre à coucher à l'étage supérieur et à une zone de support au sous-sol. La distribution interne est conçue pour favoriser la continuité visuelle et la luminosité, créant des environnements accueillants et fonctionnels.

150 Melides : une résidence contemporaine entre nature et design fonctionnel

Solutions durables : le sous-sol et les patios pour la lumière naturelle et la ventilation

Un élément distinctif de 150 Melides est le sous-sol, éclairé et ventilé par trois patios positionnés stratégiquement au nord, au sud et à l'est. Ces espaces améliorent non seulement le confort de vie, mais représentent également une solution écologique qui réduit l'impact environnemental. Les patios agissent comme un système naturel de ventilation et d'éclairage, contribuant à réguler la température interne et à améliorer la qualité de l'air dans les espaces inférieurs, un élément clé dans la vision durable des architectes de José Adrião.

150 Melides : une résidence contemporaine entre nature et design fonctionnel

Innovation constructive : un système en béton armé thermiquement efficace

Le système de construction adopté pour 150 Melides repose sur une structure monolithique en béton armé avec un noyau en EPS, garantissant légèreté et robustesse. Cette solution permet de réduire l'épaisseur des murs, d'augmenter la surface utilisable et d'améliorer l'efficacité énergétique du bâtiment. Le design, durable et efficace, fait de 150 Melides non seulement un exemple d'innovation architecturale, mais aussi un modèle de construction respectueux de l'environnement, comme fortement souhaité par José Adrião Architects.

150 Melides : une résidence contemporaine entre nature et design fonctionnel

Connexion entre l'intérieur et l'extérieur : une maison en dialogue avec le paysage

La résidence 150 Melides établit un dialogue constant avec le terrain à travers les espaces sociaux, conçus pour offrir une connexion visuelle avec le paysage environnant. L'agencement des espaces est pensé pour valoriser la vue et favoriser une interaction harmonieuse entre l'intérieur et l'extérieur. Cette approche intégrée, fruit de la vision des architectes José Adrião, confère à la maison un caractère distinctif, mettant l'accent sur la relation avec l'environnement et sur la qualité de vie.

150 Melides : une résidence contemporaine entre nature et design fonctionnel

Gallery