150 Melides: a contemporary residence between nature and functional design
150 Melides: a contemporary residence between nature and functional design

150 Melides: a contemporary residence between nature and functional design

150 Melides is a project by José Adrião Architects that represents a refined synthesis between contemporary architecture and respect for the Portuguese landscape. The work is inspired by the local nature and integrates interior spaces designed to ensure brightness, comfort, and sustainability. Every detail is studied to create a harmonious dialogue between the residence and the natural context, using innovative materials and ecological solutions to improve the living quality and enhance the surrounding environment.



An architecture that enhances the natural context

The project is developed on flat land a few kilometers from the Portuguese Atlantic coast, an area characterized by scattered settlements and plots of various sizes. This area, originally agricultural and forested, gives the project a strong connection to the surrounding nature, reinterpreting the essence of the local landscape through an architecture that respects the rules of land management.

150 Melides: a contemporary residence between nature and functional design

Quinta das Oliveiras: a conscious restoration

Quinta das Oliveiras, the project area, originally included a small cultivated area, a pine forest, and a group of buildings of low construction quality. Territorial regulations defined the design approach: existing buildings could only be demolished and rebuilt, respecting the original perimeters. This limitation posed a challenge, but also served as a guide for creating a space that maintains the rural character of the region, revisiting it with modern and sustainable solutions, as proposed by José Adrião Architects.

150 Melides: a contemporary residence between nature and functional design

Interior design: light and comfort as protagonists

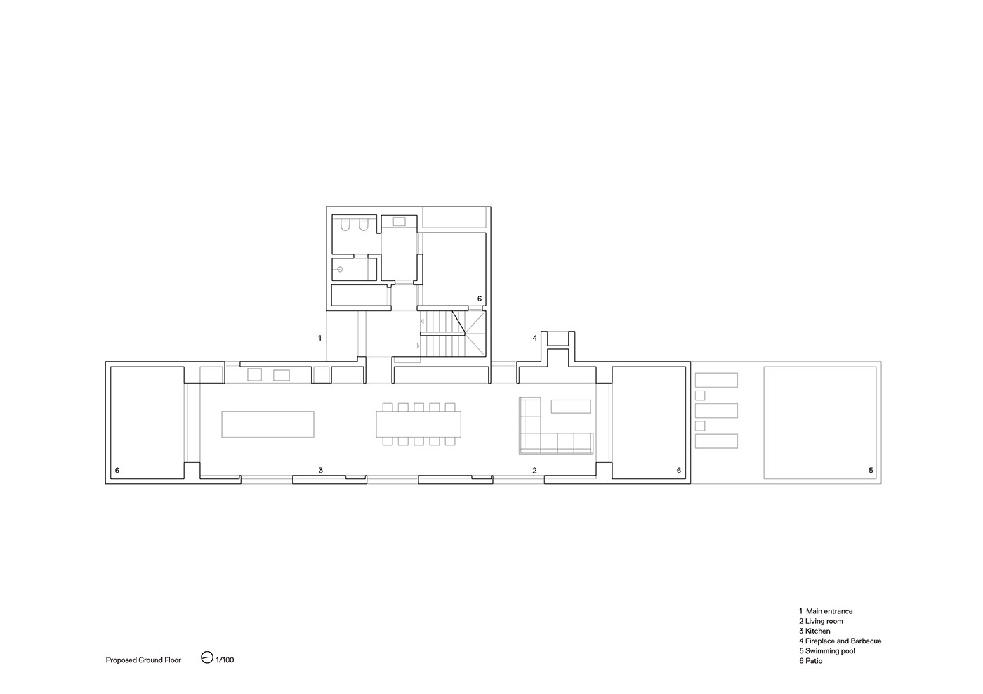
The interior design of 150 Melides has been carefully developed by José Adrião Architects to respond to the layout of the spaces and the comfort needs, making natural light and ventilation central elements. The project is structured in two interconnected volumes: one long and horizontal, housing the kitchen, dining area, and living room in an open space, and a taller and cubic volume, accommodating the stairs to access the bedroom on the upper floor and a support area in the basement. The internal distribution is designed to promote visual continuity and brightness, creating welcoming and functional environments.

150 Melides: a contemporary residence between nature and functional design

Sustainable solutions: the basement and patios for natural light and ventilation

A distinctive feature of 150 Melides is the basement, illuminated and ventilated by three patios strategically positioned to the north, south, and east. These spaces not only enhance living comfort but also represent an ecological solution that reduces environmental impact. The patios act as a natural ventilation and lighting system, helping to regulate internal temperature and improve air quality in the underlying spaces, a fundamental element in José Adrião Architects' sustainable vision.

150 Melides: a contemporary residence between nature and functional design

Constructive innovation: an thermally efficient reinforced concrete system

The construction system adopted for 150 Melides is based on a monolithic structure in reinforced concrete with an EPS core, ensuring lightness and robustness. This solution allows for reducing the thickness of the walls, increasing the usable area, and improving the energy efficiency of the building. The sustainable and efficient design makes 150 Melides not only an example of architectural innovation, but also a model of environmentally friendly construction, as strongly desired by José Adrião Architects.

150 Melides: a contemporary residence between nature and functional design

Connection between interior and exterior: a house that interacts with the landscape

The residence 150 Melides establishes a constant dialogue with the terrain through the social areas, designed to provide a visual connection with the surrounding landscape. The layout of the spaces is intended to enhance the view and promote a harmonious interaction between interior and exterior. This integrated approach, born from the vision of José Adrião Architects, gives the house a distinctive character, emphasizing the relationship with the environment and the quality of living.

150 Melides: a contemporary residence between nature and functional design

Gallery