SUMO Arquitectes conçoit la BE House qui s'inspire des principes de la maison passive. L'architecture qui en résulte est compacte, bien étanche; la façade est isolée de manière optimale pour éviter les pertes de chaleur. La fondation en béton sur laquelle le bâtiment repose offre la bonne inertie thermique. Grâce à ces caractéristiques de conception, un bâtiment à faible consommation est garanti tant pour le chauffage que pour la climatisation


Autonomie énergétique et confort de vie pour la maison en bois et acier BE
La BE House a été conçue pour une famille entrepreneuriale de quatre personnes. Le site du projet est un terrain de 370m², avec une orientation optimale, entouré de petites maisons dans la ville d'Argentona, à 30 minutes en voiture de Barcelone
- #L'Europe>
- #Espagne>
- #Energy>
- #Résidence>
- #Villa>
- #Bois>
- #Architecture>

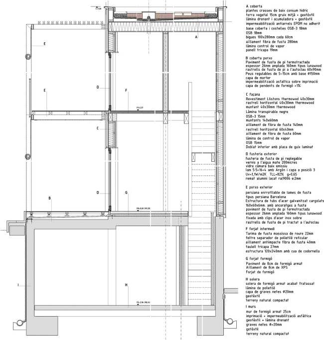
Le rez-de-chaussée et le deuxième étage de la BE House sont construits avec un système de cloison sèche industrialisé. La structure est faite de plaques et de poutres en bois, et la façade est finie avec des lattes de pin traitées à la chaleur. Des profils en acier galvanisé à chaud définissent la zone du porche : une structure légère qui crée un espace de transition entre l'intérieur et l'extérieur. Des pare-soleil en bois lamellé protègent la maison de la lumière directe du soleil et permettent une ventilation croisée

Chaque matériau est utilisé là où il est le plus efficace. Un toit végétalisé protège le bâtiment de l'exposition directe au soleil et empêche la surchauffe. Un système photovoltaïque placé sur le toit produit l'énergie dont la maison a besoin, et des batteries de stockage permettent à la BE House d'être déconnectée du réseau électrique

Gallery
Crédits photo
Image principale, contenu et images de la galerie: Aitor Estévez Olaizola
Dessins: SUMO Arquitectes

















