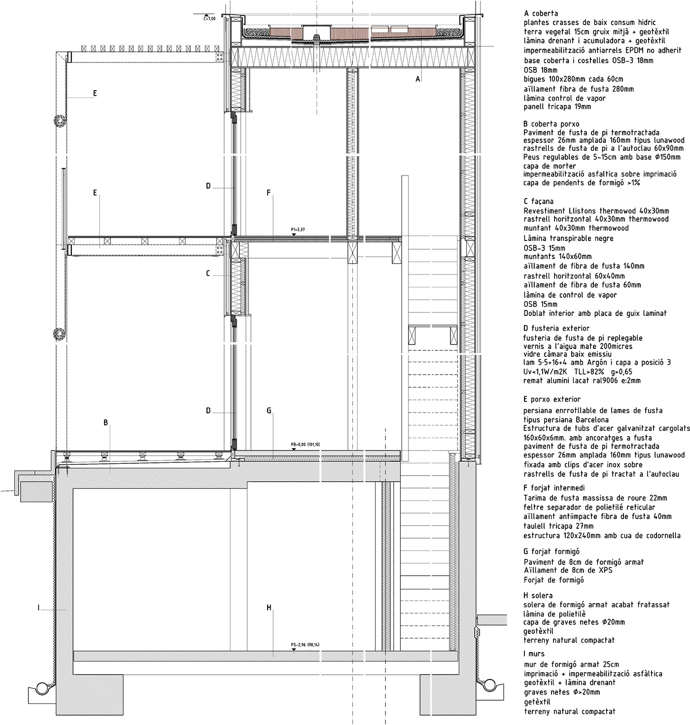
SUMO Arquitectes diseña la BE House inspirándose en los principios de la casa pasiva. La arquitectura resultante es compacta, bien hermética; la fachada está bien aislada para evitar la dispersión. La base de hormigón sobre la que se asienta el edificio proporciona la inercia térmica adecuada. Estas características de diseño garantizan un edificio de bajo consumo tanto en calefacción como en refrigeración


Autonomía energética y confort de vida para la BE House de madera y acero
La BE House fue diseñada para una familia emprendedora de cuatro miembros. El terreno del proyecto es una parcela de 370 metros cuadrados, con una orientación óptima, rodeada de pequeñas casas en la localidad de Argentona, a 30 minutos en coche de Barcelona
- #Europa>
- #España>
- #Energía>
- #Residencia>
- #Villa>
- #Madera>
- #Arquitectura>

La planta baja y los primeros pisos de la BE House están construidos con un sistema industrializado en seco. La estructura está hecha de losas y vigas de madera, y la fachada está acabada con listones de pino tratados térmicamente. Los perfiles de acero galvanizado en caliente definen la zona del porche: una estructura ligera que genera un espacio de transición entre el interior y el exterior. Los parasoles de madera laminada protegen la casa de la luz solar directa y permiten una ventilación transversal

Cada material se utiliza donde es más eficiente. El techo vegetal protege al edificio de la exposición a la luz solar directa y evita su sobrecalentamiento. Un sistema fotovoltaico en el techo produce la energía que necesita la casa y unas baterías de almacenamiento permiten desconectar la BE House de la red eléctrica

Galeria
Créditos Fotográficos
Imagen de portada, imagenes artículo y gallery: Aitor Estévez Olaizola
Diseños: SUMO Arquitectes

















