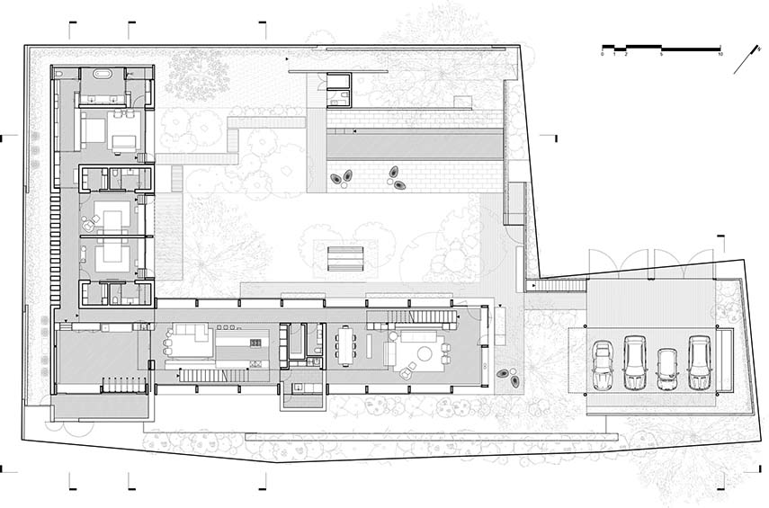
Degrés progressifs d'intimité, entre un terrain de golf et le jardin privé
Casa L&J est l'un des projets d'architecture résidentielle du studio mexicain d'Alvaro Moragrega. Située à proximité d'un terrain de golf, la villa, avec son volume principal en verre et acier, son toit en pente recouvert de tuiles plates noires, crée un filtre et une protection pour la tranquillité de ses habitants. À l'intérieur, la distribution des espaces suit la forme allongée avec des degrés progressifs d'intimité























