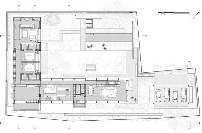
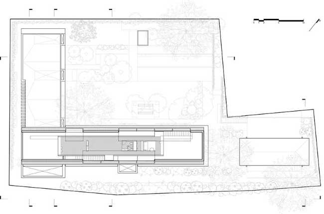
Gradi progressivi di intimità, tra un campo da golf e il giardino privato
Casa L&J è uno dei progetti di architettura residenziale dello studio messicano di Alvaro Moragrega. Collocata nelle adiacenze di un campo da golf, la villa, con il suo volume principale in vetro e acciaio, il tetto a falde rivestite da tegole piatte nere, crea un filtro e una protezione per la tranquillità dei suoi abitanti. Al suo interno, la distribuzione degli spazi segue la forma allungata con gradi progressivi di intimità























