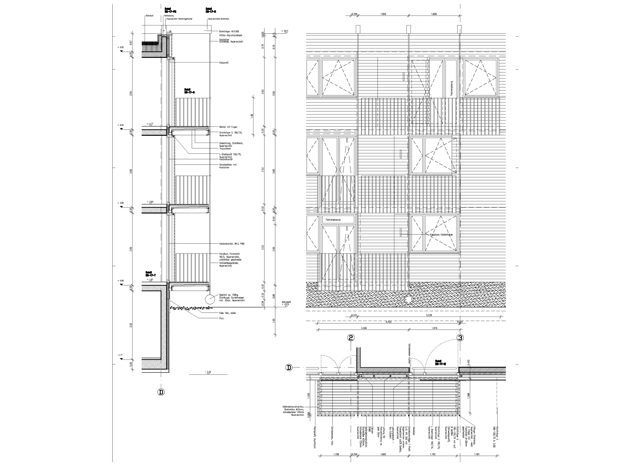
La forme en cube, telle qu'elle se présente dans le complexe résidentiel, présente quatre façades différentes, deux avec un caractère plus urbain et deux avec des caractéristiques plus organiques, tournées vers le parc voisin.


Un cube, quatre faces. Le bois chaud et doux se juxtapose à la façade blanche en plâtre.
L'architecte Josep Lluís Mateo, fondateur du cabinet d'architecture mateoarquitectura, basé en Suisse, en Espagne et en France, conçoit un complexe résidentiel à Chemnitz, ville allemande, en opposant en façade la chaleur organique du bois à la froideur du crépi.
- #L'Europe>
- #Allemagne>
- #Nouvelle construction>
- #Complexe résidentiel>
- #Bois>
- #Béton>
- #Enduit>
- #Architecture>
- #Architectures>

Dans les plans en bois, il y a des balcons qui semblent flotter depuis le toit, soutenus par une structure métallique. Le projet ne se détache pas de son contexte, mais dialogue à la fois avec la Banque centrale allemande voisine, la Bundesbank, et avec le parc qui l'entoure.

Gallery
Photo : Jan Bitter











