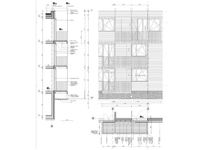
The cube shape of the residential complex has four different façades, two of which are more urban in character and two with more organic features facing the nearby park


One cube, four façades. Warm, soft wood complements the white plaster façade
Architect Josep Lluís Mateo, founder of mateoarquitectura architectural studio based in Switzerland, Spain and France, designed a residential complex in Chemnitz, a German city in which the warm organic character of wood contrasts with the coldness of plaster on the façade
- #Europe>
- #Germany>
- #New construction>
- #Complex Residential>
- #Wood>
- #Concrete>
- #Plaster>
- #Architecture>
- #Architectures>

In the wooden elevations, there are balconies that seem to float from the roof, in which there is a metal structure from which they appear to be supported. The project is not isolated from its surroundings, but communicates with the nearby German central bank, the Bundesbank, and the park surrounding it

Gallery
Photo: Jan Bitter











