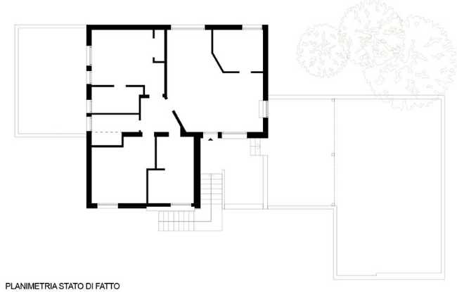
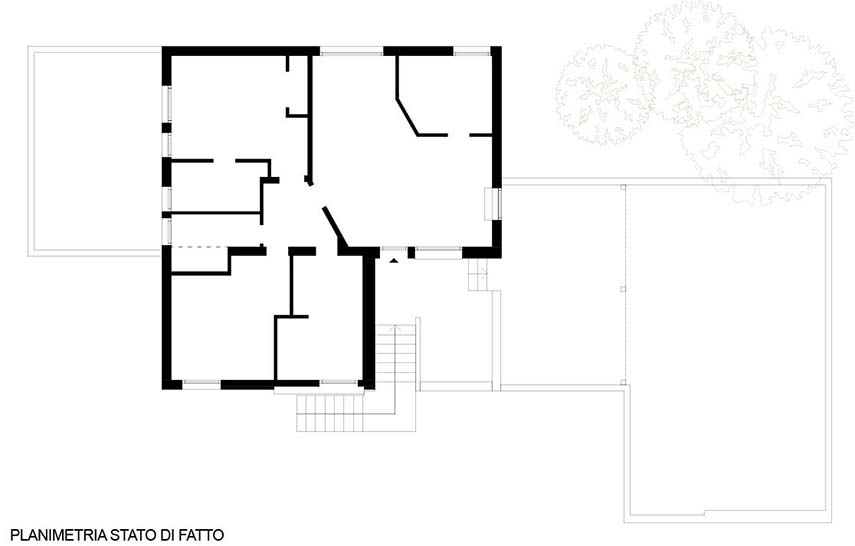
Une relecture du thème de la "maison de bord de mer" avec une nouvelle fluidité
Supercake Studio, spécialisé dans l'architecture, les projets de design d'intérieur, la graphisme et le design de produit, assure la rénovation de la Maison à Gualdo en proposant une relecture du thème de la "maison de bord de mer". Avec une grande attention portée également à la relation avec l'extérieur, favorisée par deux grandes terrasses appartenant à l'appartement, le projet prévoit l'optimisation de l'espace intérieur qui acquiert une nouvelle fluidité























