Completed earlier this year, the house is located in a region that benefits from oceanic climatic conditions. The project was developed from the owners' desire to build a new house on their property in Baden, incorporating a garden and a natural swimming pool. These were created before the construction of the house in collaboration with a designer and a landscape gardener. The garden was designed to provide protection from the Wester winds with a vegetable garden to the east. A distinctive environment has emerged from this new natural environment surrounding the site


Organic Architecture in France. Bioclimatic Principles and Wooden Structure
This residence on the banks of the Golfe du Morbihan, not far from Auray, was built by Architect Patrice Bideau using the principles of organic architecture with a concentration of green energy components for maximum efficiency
- #L'Europe>
- #France>
- #Habitation>
- #Nouvelle construction>
- #Bois>
- #Verre>
- #Pierre>
- #Architectures>
- #Architecture>

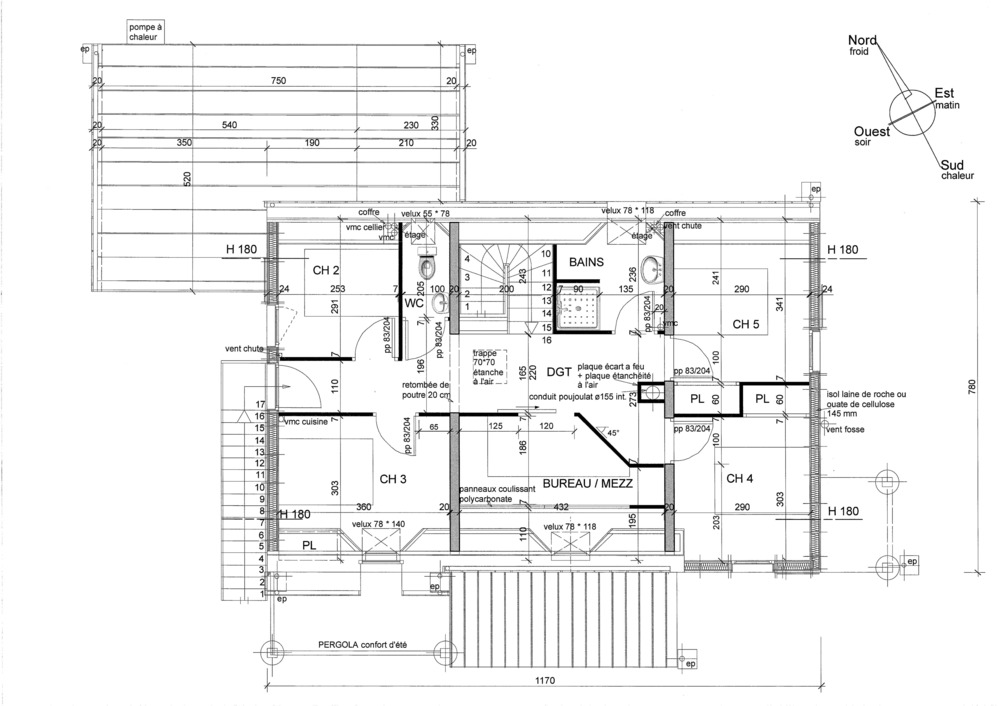
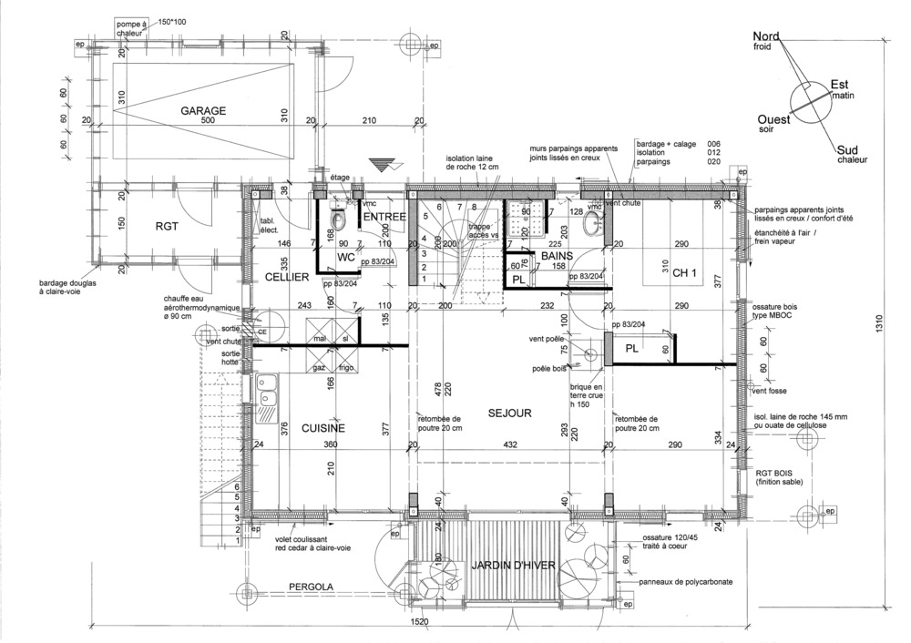
Initially, the plan was to build a low-energy house using a combination of bioclimatic concepts, wood and concrete frame, thermodynamic heating and a 5.8 kW hot water tank. The house was designed for an energy consumption of 31 kWhpe/sqm per year for heating and hot water with a hygrometric ventilation system (humidity controlled). As the work progressed, the plans evolved!

The house was located in the north-west part of the property in order to provide maximum space for the garden and terrace. The wooden garage with arched zinc roof and cladding acts as a protective buffer, the canopy overhang also provides shelter for the main entrance

There are a few openings in the wall facing north. Built with concrete blocks of concrete that have been left in place internally and insulated with an add-on wooden frame, a 120mm layer of rock wool and exterior cladding, this wall and the adjacent walls support the wooden floor while its intense thermal inertia controls temperatures, contributing to the comfort of the occupants in both winter and summer

The walls of the house are made of 145/45 wood with 145mm rock wool insulation on a concrete floor covering humped foundations consisting of 200mm polystyrene slabs and an extra 50mm insulation layer designed to limit linear heat transfer

The roof inclined at 45° is covered with natural shale slabs and has a zinc-coated arched dormer window for wood preservation. The roof is insulated with 300 mm rock wool. The vertical structure and pitch have a steam brake, which has been twice tested for efficiency to ensure airtightness

In front of the pool, a wisteria pergola forms a link between the kitchen, the terrace and a winter garden with polycarbonate roof, double glazing and wooden substructure. The winter garden with its wooden slatted sliding shutters and the winter garden consisting of stones, slates and broken shrubs is designed to provide extra warmth in winter and stay open in summer, thus ensuring natural ventilation for the house

The combination of all these ecological elements contributed to the elimination of the thermodynamic heating system and its replacement with back-up heating in the form of a 6 kW wood-burning stove in addition to high-performance fluid-filled radiators with an efficiency of between 80 and 90 kWhpe/sqm per year, which conforms to the French THPE (very high energy performance) label

This house has benefited from the active involvement of the owners in the radical transformation of their living space. They have introduced an innovative use of interactions and colour perception in search of a harmonious atmosphere in which to engage in a new life














