Completata all'inizio di quest'anno, la casa è situata in una regione che beneficia delle condizioni climatiche oceaniche. Il progetto è nato dal desiderio dei proprietari di costruire una nuova casa sulla loro proprietà a Baden, incorporando un giardino e una piscina naturale. Questi sono stati creati prima della costruzione della casa in collaborazione con un designer e un giardiniere del paesaggio. Il giardino è stato progettato per fornire protezione dai venti di Wester con un orto ad est. Un ambiente distintivo è emerso da questo nuovo ambiente naturale che circonda il cantiere


Architettura Organica in Francia. Principi Bioclimatici e Struttura in Legno
Questa residenza sulle rive del Golfe du Morbihan, non lontano da Auray, è stata costruita dall'Architetto Patrice Bideau utilizzando i principi di architettura organica con una concentrazione di componenti di energia verde per la massima efficienza
- #Europa>
- #Francia>
- #Abitazione>
- #Nuova costruzione>
- #Legno>
- #Vetro>
- #Pietra>
- #Architettura>
- #Architectures>

Inizialmente, il piano era di costruire una casa a basso consumo energetico usando una combinazione di concetti bioclimatici, telaio in legno e cemento, riscaldamento termodinamico e un serbatoio di acqua calda da 5,8 kW. La casa è stata progettata per un consumo energetico di 31 kWhpe/mq all'anno per il riscaldamento e l'acqua calda con un sistema di ventilazione igrometrico (regolato in base all'umidità). Con il progredire del lavoro, i piani si sono evoluti!

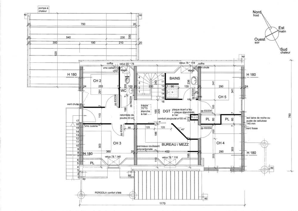
La casa era situata nella parte nord-ovest della proprietà al fine di fornire il massimo spazio per il giardino e la terrazza. Il garage con struttura in legno con rivestimento e tetto in zinco ad arco funge da tampone protettivo, la sporgenza del baldacchino offre anche un riparo per l'ingresso principale

Ci sono poche aperture nel muro di fronte nord. Costruito con blocchi di cemento in calcestruzzo lasciati intraducibili all'interno e isolato con un telaio in legno add-on, uno strato di 120 mm di lana di roccia e rivestimento esterno, questo muro e le pareti adiacenti sostengono il pavimento in legno mentre la sua intensa inerzia termica controlla le temperature, contribuire al comfort degli abitanti sia in inverno che in estate

Le pareti della casa sono in legno 145/45 con isolamento in lana di roccia 145mm su un pavimento di cemento che copre fondamenta a gobba composte da lastre di polistirene da 200 mm e uno strato di isolamento extra da 50 mm progettato per limitare il trasferimento termico lineare

Il tetto inclinato a 45 ° è coperto da lastre di scisto naturale e presenta un abbaino ad arco rivestito in zinco per la conservazione del legno. Il tetto è isolato con lana di roccia 300 mm. La struttura verticale e il passo hanno un freno a vapore, due volte testato per l'efficienza, per assicurare la tenuta all'aria

Di fronte alla piscina, un pergolato per glicine forma un collegamento tra la cucina, la terrazza e un giardino d'inverno con struttura in legno con tetto in policarbonato, doppi vetri e sottostruttura in legno, che ospita un giardino d'inverno. Il giardino d'inverno con le sue persiane scorrevoli a doghe in legno e il giardino d'inverno composto da pietre, ardesie e arbusti spezzati è progettato per procurarsi calore extra in inverno e rimanere aperto in estate, assicurando così una ventilazione naturale per la casa

La combinazione di tutti questi elementi ecologici ha contribuito all'eliminazione del sistema di riscaldamento termodinamico e alla sua sostituzione con il riscaldamento di riserva sotto forma di una stufa a legna da 6 kW oltre a radiatori riempiti di fluido ad alte prestazioni per un'efficienza compresa tra 80 e 90 kWhpe/mq all'anno, che è conforme all'etichetta francese THPE (altissima prestazione energetica)

Questa casa ha beneficiato del coinvolgimento attivo dei proprietari nella trasformazione radicale del loro spazio vitale. Hanno portato un uso innovativo dell'interazione e percezione del colore alla ricerca di un'atmosfera armoniosa in cui intraprendere una nuova vita














