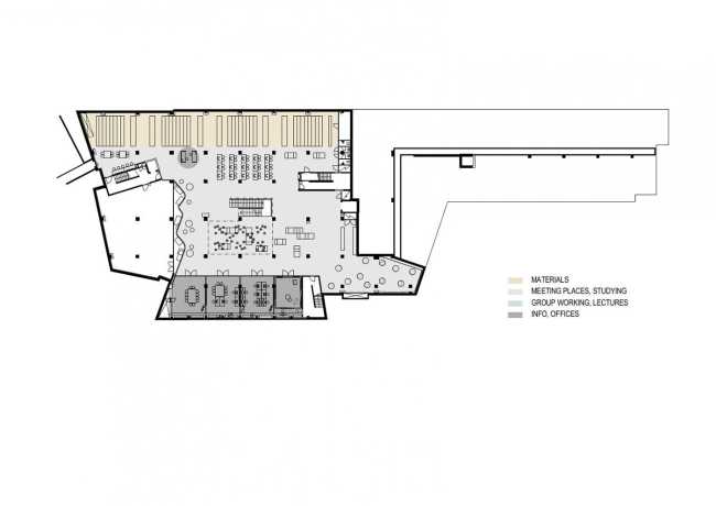
Expérimentation et collaboration à la base du projet architectural
Dans la ville d'Aalto, en Finlande, le cabinet JKMM, en collaboration avec Arkkitehdit NRT, réalise une rénovation radicale des espaces à l'intérieur de la bibliothèque universitaire Harald Herlin Learning Centre, la transformant en un centre culturel polyvalent et moderne où les étudiants sont encouragés à expérimenter des formes d'apprentissage et de collaboration innovantes.



















