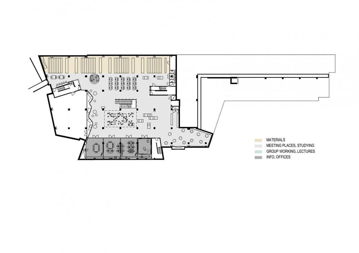
Experimentation and collaboration at the core of the architectural project
In the city of Aalto, Finland, the JKMM studio, in collaboration with Arkkitehdit NRT, carries out a radical restructuring of the spaces inside the Harald Herlin Learning Centre university library, transforming it into a multifunctional and modern cultural center where students are encouraged to experiment with innovative forms of learning and collaboration.



















