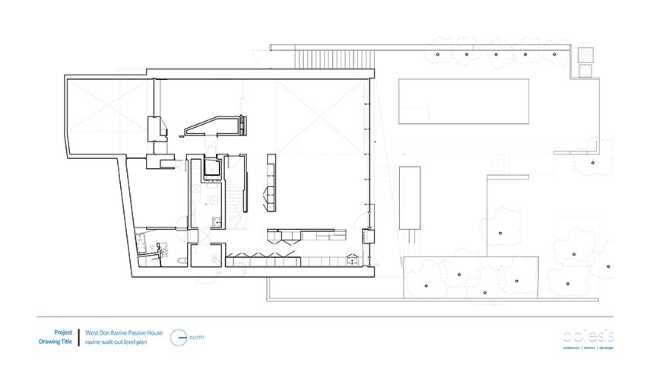
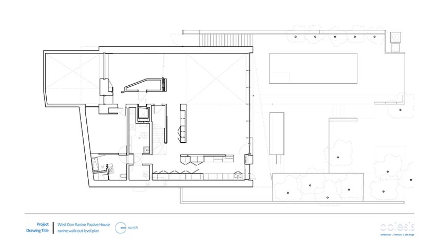
Un projet personnel et innovant
Le projet est né d'une intuition du fondateur du cabinet Poiesis Architecture, Gregory Rubin, qui a réalisé la maison pour ses parents. Résidant depuis longtemps dans le quartier, les parents de Rubin souhaitaient réduire la taille de leur maison pour mieux s'adapter à leurs besoins futurs, tout en conservant le lien avec le paysage environnant. La maison précédente, sur trois étages, a été remplacée par une structure de style bungalow, plus adaptée à la vie à la retraite.
L'objectif était non seulement de réduire la taille, mais aussi de créer une maison résistante aux effets du changement climatique, après une grave tempête de glace en 2013.





















