Each PULP - the Small Units of Public Lecture, two temporary libraries located in the city, each measuring 230 m², aims to be a social catalyst using culture and the media as a means of attracting and intellectually nourishing the population. These are local services created to promote cultural diversity and the meeting of generations


The PULP - Small Public Library Units for free and open culture with a cascade effect
The Villejuif town hall wants to offer its citizens a new cultural centre by building two mobile libraries that can be located in different parts of the town: this is how the PULP - Petites Unités de Lecture Publiques - came into being
- #Europe>
- #France>
- #Architectures>
- #New construction>
- #Culture and Services>
- #Library>
- #Cultural center>
- #Wood>
- #Architecture>

OVERCODE architecture urbanisme works on an architectural strategy that grasps and uses the diversities: the objective is to conceive a building that can adapt to any type of site or orientation, guaranteeing light, openness, volume and that can also be welcoming in case of permanent installation

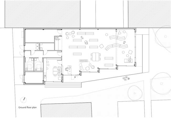
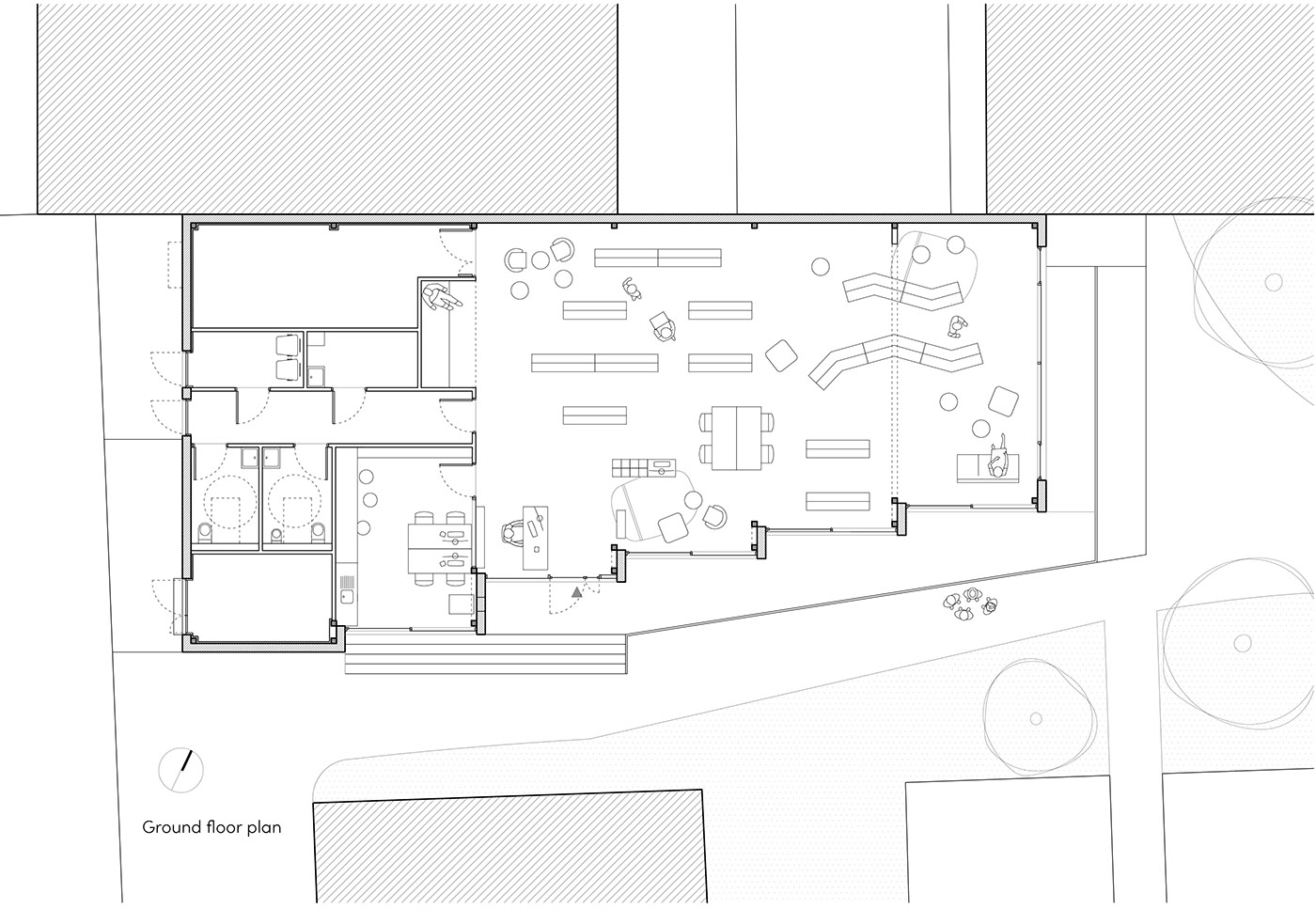
Overcode's design is based on a rectangular unit which is repeated and creates a sequence moving along the two axes in plan and section. The effect is that of a "cascade" offering more possibilities for reading the volumes of this architecture. The two buildings are designed as a mirror: they are the same but different. Both buildings share a similar organisation; the lower volume is dedicated to fixed services (storage, toilets and office) while the main volume is free, dedicated to library space

The main volume can also be adapted for different activities: a movable partition wall allows to split the space into a smaller area for conferences, video projections, workshops, etc. The furniture, which is not fixed, can be moved, freeing up space for larger meetings and events

The structure of the whole building is made of wood (main structure, walls, slabs, wall finishes). It was pre-fabricated off-site and assembled on site: in five months the construction process was completed including the interior finishing. This choice of construction type allowed to minimise the impact on the site and was made considering the possible need to remove the building in the future

Gallery
Photo credits
Top image, content and gallery images: David Foessel
Drawings: Overcode

















