The new centre was required following the reconstruction of the historic "gardenand" castle with the consequent increase in the number of visitors


Wooden expansion in the Netherlands. The new Visitor Centre in the Castle
At the end of 2014, lab03, in cooperation with the contractor Somass, won the competition for a new visitor centre next to the historic Assumburg castle in Heemskerk, the Netherlands, whose construction was completed in 2015
- #Europe>
- #Netherlands>
- #Multipurpose center>
- #Building extension>
- #Wood>
- #Stone>
- #Glass>
- #Plaster>
- #Architectures>
- #Architecture>

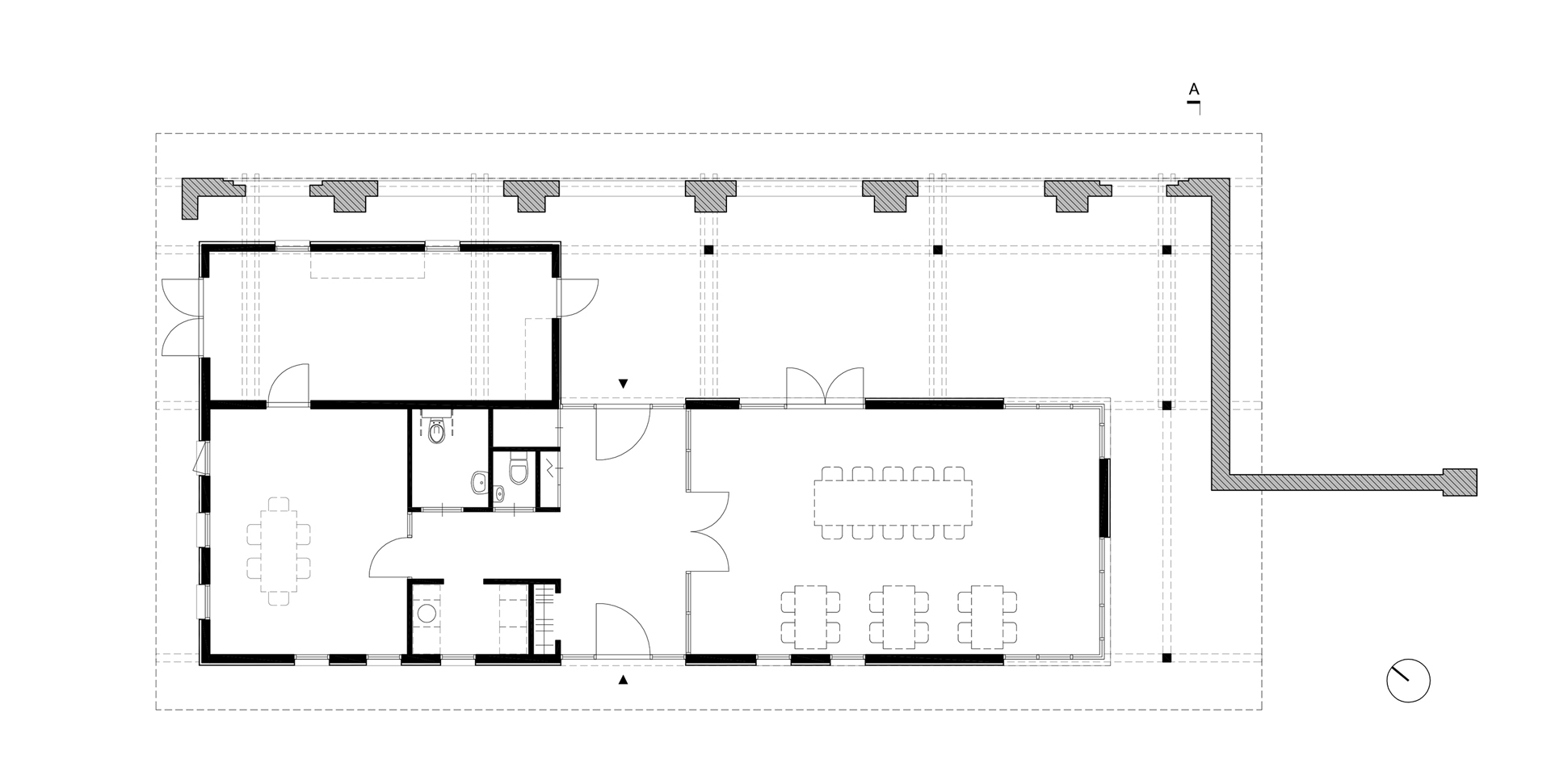
The building houses a general reception, a volunteer office and a laboratory. Construction was completed by the end of 2015

The design restores the symmetry of the square by positioning the building on the remains of the old stables. In this way, the central axis of the square is still flanked by two service buildings: the Orangery and the new visitor centre. Over time, the passages in the historic wall will be reopened and the centre will be directly connected to the square

For the positioning, the setting chosen, the use of the material, the construction blends into the environment in a natural way. The new volume is set back from the existing monumental wall. Extending the roof over the existing wall creates a new covered outdoor space. The new building is added to the existing one on a new level respecting the history of the place

By separating the reception and office spaces, both spaces can be used independently. The laboratory is accessible from both inside and outside. Above the laboratory, in the attic, there is a space for the storage of fruit and vegetables from the garden

The craft buildings and modern installation techniques are suited to each other: the larch wood used for the construction was sawn in the wind powered sawmill 'tJongeSchaap, near the Zaanse Schans. The visitor center is heated by a heat pump

The building is neutral in its energy consumption. The old glass tiles provide extra light for the outdoor area. The space has been brilliantly illuminated to correspond to the atmosphere of the old castle


















