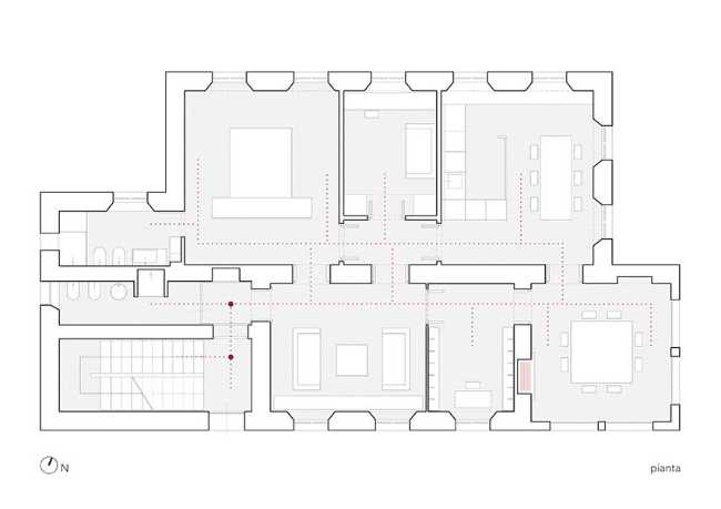
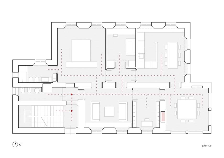
Past and present in the design of the future
In the ambitious project of Andrea's House in Verese, Italy, the interior design projects studio DUEARCHITETTI aimed to enhance this stunning nineteenth-century apartment through the use of elm wood and a design attentive to natural light. The final result was the emphasis on a perfect blend of past and present, giving the apartment a welcoming and refined atmosphere.





















