The villa has been designed and built with local materials, which are used both for the interiors and exteriors, allowing the architecture to blend in with the environment in which it stands


Wooden villa near the Baltic Sea. Local materials as well as contact with nature
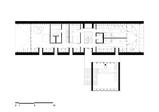
The family villa, designed by DO Architects studio is located a few hundred metres from the Baltic Sea, where sand, pebbles and pines meet in a place full of views and sounds that enable you to get in touch with the surrounding nature
- #Europe>
- #Lithuania>
- #New construction>
- #Villa>
- #Wood>
- #Architectures>
- #Architecture>

The building is divided into two volumes, thanks to which different spaces are created in terms of variety and functionality, encouraging comfortable living. The different paths connect volumes and spaces, creating engaging dynamics, suitable for every member of the family

Gallery
Photo: Laimonas Ciūnys and DO Architects












