Newlab and CIVILIVN have collaborated to reinvent the 1930s manufacturing building into a state-of-the-art space designed to host Newlab's rapidly expanding community of over 800 engineers, entrepreneurs and inventors. The former factory in the Brooklyn Navy Yard features six floors of space for the thriving community


In Brooklyn an industrial building is converted into an office. Open space and custom-made furniture
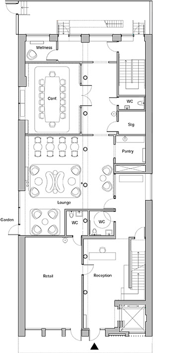
The New York-based CIVILIVN Studio has been hired by Newlab to transform 77 Washington, a building of almost 30,000 square metres, into dynamic workspaces, with distinct but always interrelated areas to encourage creative teamwork

The 77 Washington project maintains the original industrial character of the manufacturing building and reinvents it as a contemporary workspace. The conference rooms divide the open layout, creating distinct areas that remain quite flexible. A mix of individual workstations, informal breakout areas and private conference rooms support collaborative and focused work

Large windows create a border filter between the interior and the street. A customized reception area made of aluminum laminate, mounted on painted plywood tubes, offers a contemporary element that contrasts with the building's original floors, masonry walls and exposed ceiling beams

For furniture, CIVILIVN has finished pieces from the Art Deco era with highly durable materials, creating a distinctive workspace that can be perfectly adapted to the specific operational needs of companies. The desks are designed to stand isolated as individual workstations or to be grouped together. The building is equipped with facilities that support today's work culture, including assembly areas, lounges, kitchenettes, private telephone booths and bicycle storage












