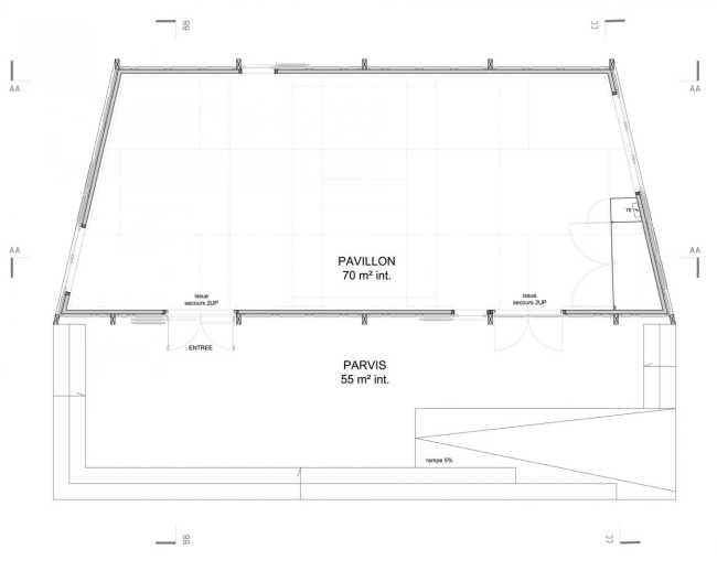
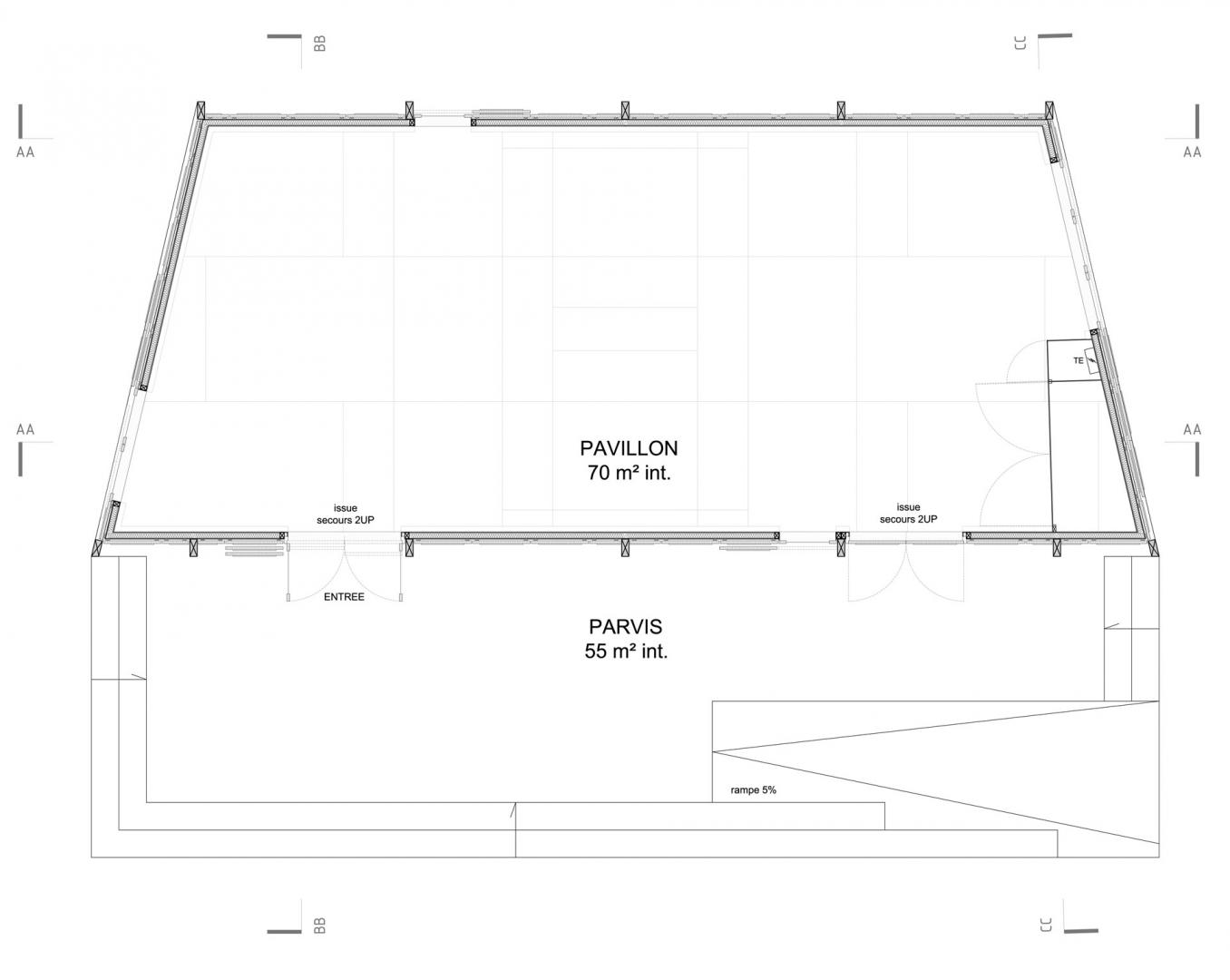
The depletion of natural resources leads the designers of Encore Heureux Architects studio to propose an ambitious project, a building for the "Zero Metropolis waste". This pavilion displays the potential for reuse in architecture and is part of COP 21, the United Nations Conference on Climate Change 2015 held in Paris


Wooden Pavilion in Paris. From waste to resources: The circular cycle of materials
A unique building, the Pavilion designed by Encore Heureux Architects studio in Paris. The name describes the process, which follows the principles of circular economy, according to which waste becomes a resource, demonstrating the potential for reuse in architecture
- #Europe>
- #France>
- #Exhibition Hall>
- #New construction>
- #Wood>
- #Architectures>
- #Architecture>

60% of the materials used in this project are given a second life. Construction site waste, wrong orders or unused stock: each of the materials used has its own history. 180 wooden doors, deposited during a rehabilitated housing operation in the 19th district of Paris, form the façade. Inside, the insulation uses mineral wool removed from a supermarket roof

The wooden structure is made of the excess material from the construction of an old people's home, while the earth and partition walls are the former walls of an exhibition. Outside, the terrace was built with the wood used in the Paris Beach event

Fifty wooden chairs were collected from bulky Parisian waste, then assembled and painted. The hanging lights came from the public lighting depot. With the exception of some specific work - the laying of the general framework and waterproofing sections, all the work was carried out by the technical services of the Paris City Hall

Attention to already existing resources and materials makes it possible to reduce the consumption of primary resources, and avoid the production and accumulation of waste which then has to be sustained. A continuous research towards an architecture characterized by sobriety and relevance

With this experimental process, the designers of Encore Heureux Architects studio demonstrate that access to the material depots is based on the new relationships established with those responsible for demolition and dismantling of construction companies, enabling the recovery of the various supplies
















