The Bibliotheater architecture project's unique form and free-flowing spaces, signed OPEN Architecture, allow students not only to cultivate their interests in reading and entertainment, but also encourage their imaginations to roam freely in the ocean of knowledge


The "blue whale" which takes students on a journey into the ocean of knowledge
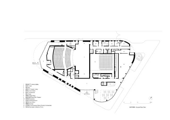
The Bibliotheater in Shanghai is the centerpiece of OPEN's latest project: a library, a theater and a black box weave together like a Chinese puzzle to form this distinctive building that some call "the blue whale" while others see it as an ocean liner
- #Asia>
- #China>
- #Architectures>
- #New construction>
- #Library>
- #Cultural center>
- #Multipurpose center>
- #Wood>
- #Concrete>
- #Plaster>
- #Color>
- #Architectures>
- #Architecture>

The Bibliotheater borders an important corner of this school-village, at an intersection near which a major city street and an ancient canal meet. The sloping roof with pointed skylights, the windows like portholes of ships, and the eye-catching blue color leave a strong impression on passersby

The reading experience is inevitably introverted and highly personal. Facing young readers up to young adult readers, the architect has created many comfortable reading areas of different qualities. A sunken roof garden offers children a breath of fresh air and an outdoor reading area when weather permits

The theater performance experience, on the other hand, is extroverted and exciting. The theater's main entrance is where the building is "cut" diagonally to form a theatrical opening. The juxtaposition of warm wood panels and deep blue walls creates a visually stimulating auditorium

Light is central to the library's design: abundant skylights on the sloping roof bring filtered light into the central reading area; a giant oculus descending from the ceiling illuminates the center itself in an almost spiritual way, forming an emotionally charged central space. While in the theater, natural light is completely avoided and artificial lighting is carefully designed to meet the functional requirements

Gallery
Photo credits
Top image, content and gallery images: Jonathan Leijonhufvud

















