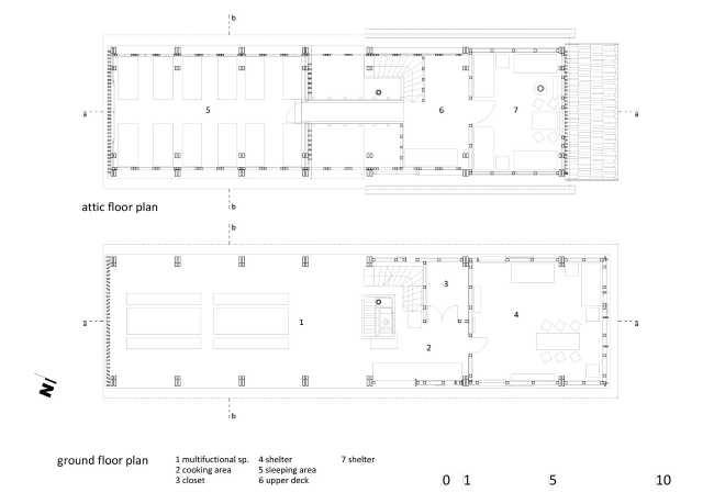
One of the different shelters designed by the Romanian studio is the Reception Hut 3, a wooden shelter located on a flat land surrounded by hills. The project therefore does not take advantage of the difference in height of the surrounding hills but rises on a level


Shelter in the Romanian hills. Detailed planning and on-site assistance
Romanian architectural studio Blipsz!, under the supervision and on-site assistance of 4ZET architecture studio composed of VárdayZsolt and VárdayKinga builds a wooden shelter in a small and remote village in Romania, Ghimeș-Făget
- #Europe>
- #Romanian>
- #Housing module>
- #New construction>
- #Wood>
- #Holiday home>
- #Architectures>
- #Architecture>

Detailed planning and on-site assistance were carried out by the 4ZET studio. The finishing materials are slightly different from previous refuge projects. The execution was carried out in a very short timeframe

Gallery
Photography: Varday Zsolt














