Kennedy & Violich Architecture designs for the new library a pair of two-storey pavilions, one in glass and one in wood, which breaks the monotony of the original reading room with its undifferentiated volume. Where the pavilions intersect, a new sculptural staircase and a lift create an extra vertical compositional axis, connecting all levels


Redesigning the Hayden Library at MIT. A dynamic and inclusive learning space
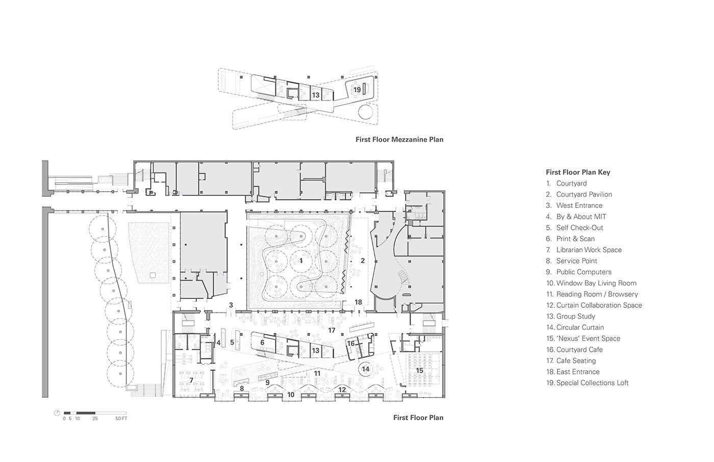
The redesign of the Hayden Library transforms the 1951 modernist repository used for post-World War II collections into a space for study, collaboration, and innovative research: MIT's new library embodies the concept of "Research Crossroads" by highlighting the potential of new ways of thinking between collections, digital and analogue analysis
- #America>
- #United States>
- #Architectures>
- #Culture and Services>
- #Library>
- #University>
- #Building extension>
- #Restyling>
- #Architecture>

The ground floor of the new Hayden Library is accessible 24 hours a day and houses a café and flexible event space, as well as digital collaboration rooms, more intimate study spaces and glass and wood volumes containing digital tools for users. Translucent curtains, mobile digital screens and whiteboards encourage students to "hack" the library, reconfiguring spaces to meet their needs

On the second floor, whose design is inspired by the strengths of the existing building, there is a new quiet and restful space with privileged views of the river and skyline.
The architects were also commissioned to redesign the inner courtyard, the Lipchitz Courtyard, after decades of disuse. In its new conformation, it becomes a dynamic central green space in which the landscaping with trees, curved wooden benches and carefully placed sculptures allows the library's activities to be extended outdoors

A new pavilion is connected to the Courtyard Café, completing a fully accessible cloister around the courtyard. Custom-milled wooden panels ensure acoustic comfort and extend the courtyard's Katsura canopy motifs to the pavilion ceiling

Gallery
Photo credits
Top image: John Horner
Content Images: 1, 3, 4 John Horner - 2 Kennedy & Violich Architecture
Gallery images: da 1, 2, 3, 4, 6, 7, 8, 9, John Horner - 5, 10, 11 Kennedy & Violich Architecture
Drawings: Kennedy & Violich Architecture
Designers credits
Design Team:
Sheila Kennedy FAIA, Design Principal
Frano Violich FAIA, Managing Principal
Ned Goodell AIA, Project Architect
Ben Widger AIA, Daniel Sebaldt AIA, Nick Johnson, Hannah Liechty, Danniely Staback Rodriguez, Kevin Marblestone, T
oshiki Niimi, Lynced Torres, Greta Wong, Jess Jorge, Chris Weaver, Mark Bavoso, Daniel Marshall, Clarence Lee, Julian Geltman
Companies credits
Landscape Architects: Stephen Stimson Associates
Structural Engineer: Buro Happold
Heating, Ventilation & Mechanical Engineers: Buro Happold
Building Envelope: Simpson Gumpertz & Heger
Lighting Design: Buro Happold
Code/Accessibility: Jensen Hughes
Sustainability: Thornton Tomasetti
Acoustics: Cavanaugh Tocci Associates
Audiovisual Design: Communications Design Associates
Cost Estimation: Vermeulens
Civil Engineering: Haley & Aldrich Inc
General Contractor: Elaine Construction

















