The SNG summer pavilion was the most attractive element of the visit to the Slovak Nation Gallery in Bratislava in the 2012/2013 season, winning an architectural award and attracting media attention and above all, great appreciation from visitors. The idea came about as a result of a broader reflection on the role of the Gallery in today's society and personal engagement


Temporary Summer Pavilion in Bratislava. A thin structure creates an experiential space
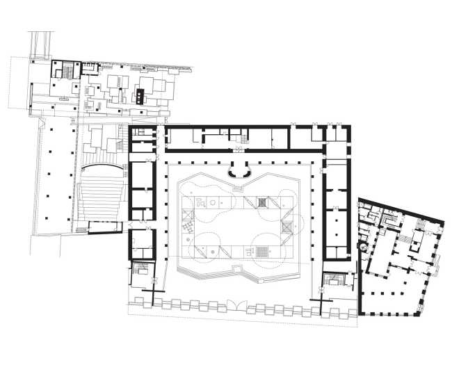
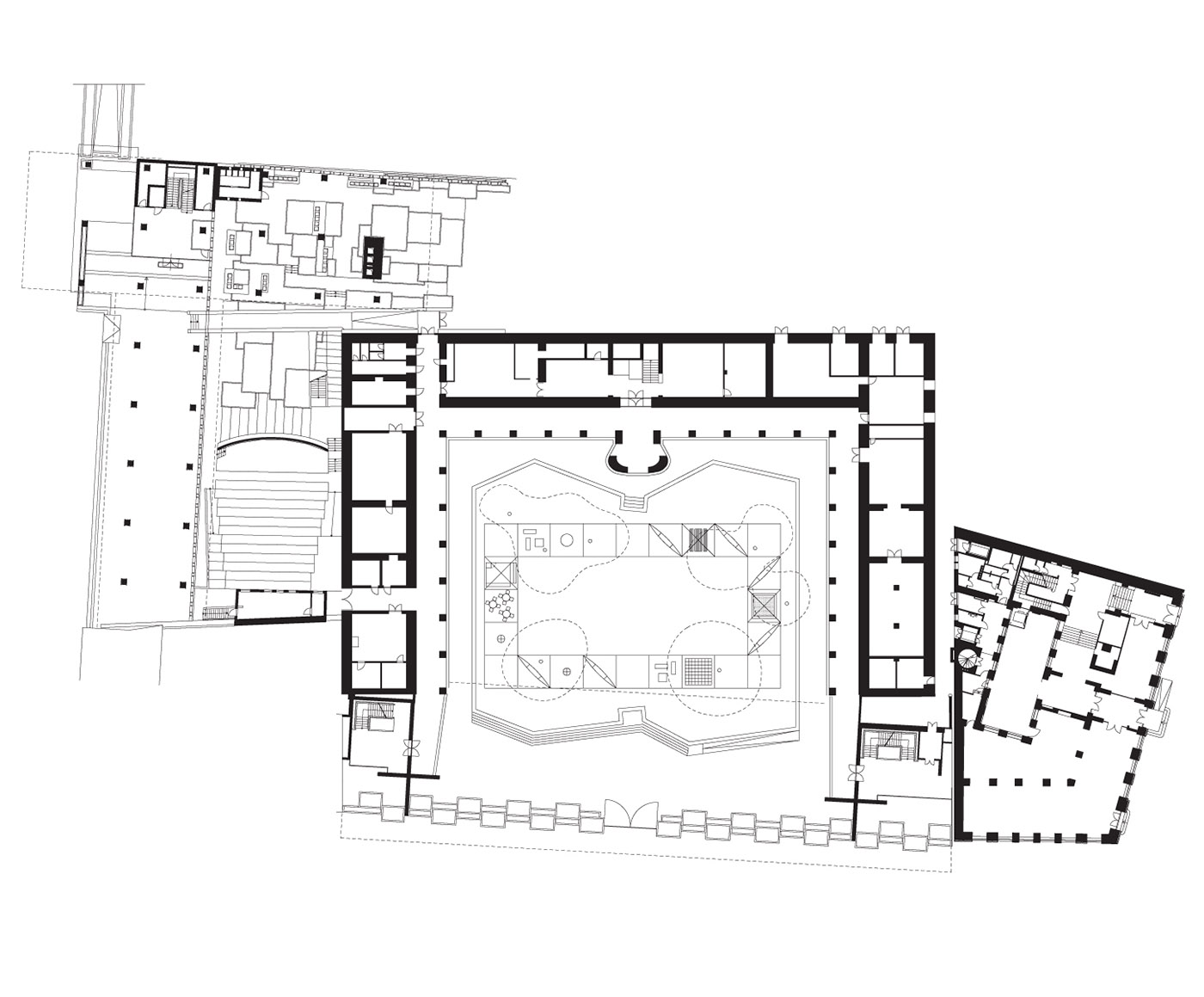
A slender structure, a monumental white skeleton encloses a green space with grass and trees that was created by the Gallery's desire to provide its visitors with a space in which they can experience the outdoors in the summer season
- #Europe>
- #Slovakia>
- #Exhibition / Temporary Installation>
- #Architecture>
- #Architectures>

Initially, it was supposed to be a reading room; but as it was designed the purpose kept changing with the addition of other activities and eventually the reading room became the smallest part of the pavilion. The starting point was to preserve the green space in the city centre, make it available as a shelter from the city heat and provide a foretaste of the maritime atmosphere, all without the obligation to visit the exhibition. But the real challenge was: how to add the wow factor to something almost invisible?

Architects Martin Jančok and Aleš Šedivec created a pavilion that is both monumental and invisible at the same time. The pavilion generates a specific spatial condition enclosing a central area surrounded by a border of white painted cells measuring 4x4x4 metres to host various activities. The clear architectural form had to be subtle enough not to divert attention from the museum building and to allow the grass and trees in the courtyard to stand out

The pavilion has assumed many functions; it has been a café, a garden, a reading room, a playground, a concert space, a theatre and an exhibition space. This project led to the creation of an experiential space to enjoy the summer in a hammock, camping in the gallery, spontaneous exchanges between cultures, children's workshops, markets, but even as a simple as sleeping under the trees








