Requalification interventions and materials
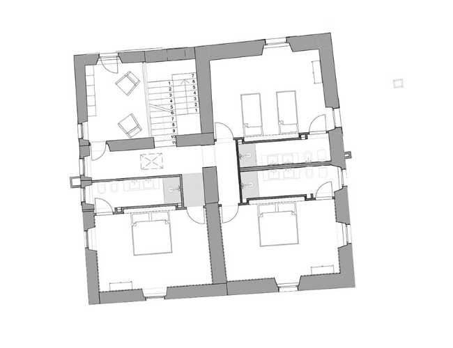
The house renovation project is carried out by Officina Abitare and consists of structural consolidation of the building, the reconstruction of some floor slabs, includes energy efficiency improvements, and, on the upper floor, the new layout for the creation of four bedrooms with bathrooms for the b&b. The new partition walls are made of plasterboard to ensure lightness and precision, the chosen materials are traditional and sustainable: thermal plasters in natural lime and cork, paintings in natural lime plaster, and, for floors and furnishings, the main protagonist: wood























