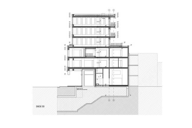
The entrance to the subway precludes the possibility of load-shedding at one corner of the site, a fact that defines the architectural form of the project by architecture firm HUB.The base of the Zegel building-the same height as the neighboring buildings-includes a 'Vierendeel' beam that spans the subway station and distributes the load of the tower volume located on the corner. The facade, on the other hand, is a light aluminum shell that dilutes the exuberant character of the structure, giving the building a relaxed, almost classical articulation


Zegel a mixed-function building with an exuberant structure toned down by the lightweight aluminum façade shell
The Zegel building, on the corner of major access roads to the city of Antwerp, is built for a mixed program of offices for the district police, residences, and the entrance to a metro station
- #Europe>
- #Belgium>
- #Architectures>
- #New construction>
- #Residence>
- #Condominium>
- #Railway / subway station>
- #Architecture>

The police station is located on the ground and second floors. The corner 'Vierendeel' beam is located behind the façade and also provides a circulation area within the station. The beam is positioned slightly back from the facade, this not only results in a free span on the ground floor, but also serves to distribute the load from the apartments located above

On the second floor of the building are three apartments ; two of these have terraces cut from the Zegel volume to create outdoor space, sheltered from the traffic of the surrounding area

A miniature tower, from the fourth floor onward, still houses an apartment on each level.
The floor plan of this area of the building is organized around a central core that provides a flexible layout. Here the materials used are simple to give expression to the structure of the building. Finally, a domed roof allows deep penetration of natural light

Gallery
Photo credits
Top image: LUCA BEEL
Content Images: 1, 3, 4 Hub - 2 LUCA BEEL
Gallery images: 2 a 10 LUCA BEEL - 1, 11, 12, 13 Hub
Drawings: Hub

















