Una residencia espaciosa y acogedora con oficina en casa y altar privado
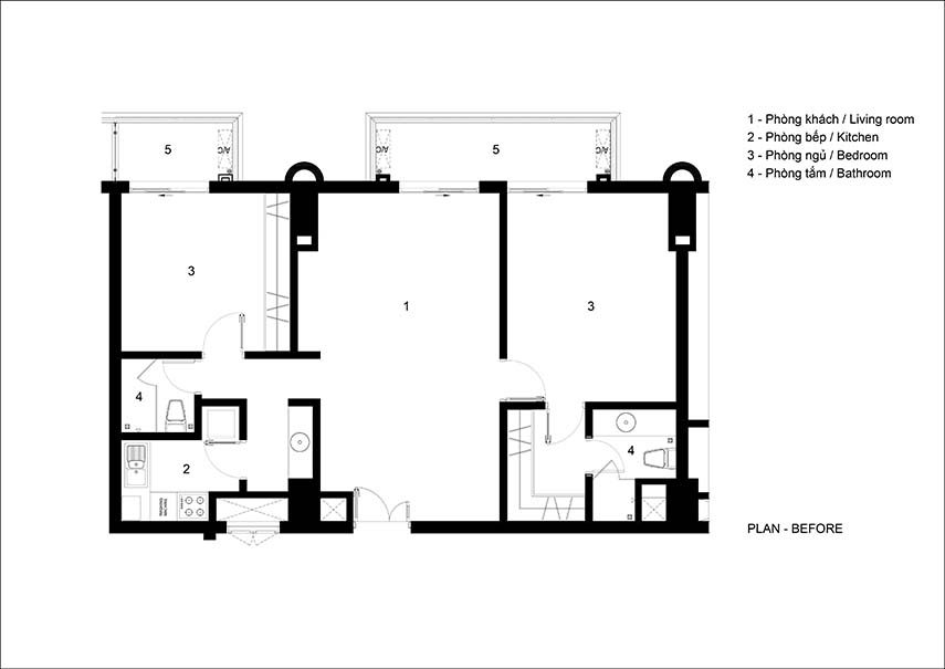
Entre los múltiples proyectos de diseño de interiores del estudio FLAT6 Architects se encuentra la transformación de una antigua vivienda en ruinas, con espacios estrechos y oscuros, en el equilibrado y aireado Apartamento A1208PP. El nuevo propietario solicitó a los profesionales una residencia espaciosa y acogedora, con un dormitorio, una oficina en casa y un espacio sagrado para un altar privado dedicado a rituales religiosos. Esta última característica no es común en las casas vietnamitas, pero las familias religiosas siempre la solicitan






















