A spacious and welcoming residence with home-office and private altar
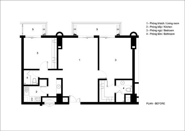
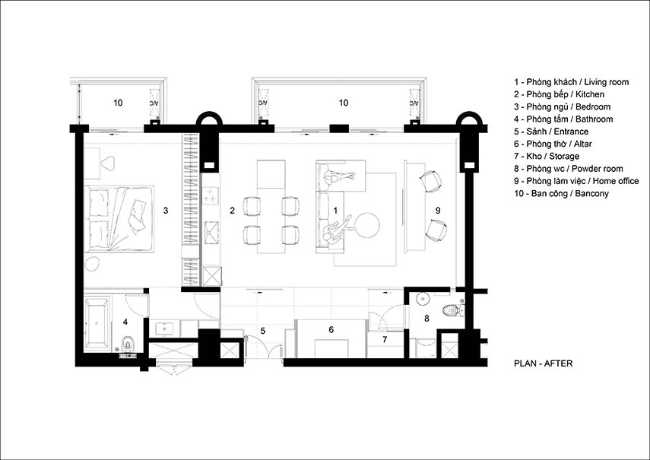
Among the various interior design projects by FLAT6 Architects studio, we find the one for the transformation of an old, dilapidated dwelling, with narrow and dark spaces, into the balanced and airy A1208PP apartment. The new owner requested from the professionals a spacious and welcoming residence, equipped with a single bedroom, a home-office, and a sacred space for a private altar dedicated to worship rituals. This last feature is not common for Vietnamese homes, but religious families always request it






















