Tras adquirir el BP Building, el grupo financiero Buysse & Partners encargó a Studio Farris Architects en 2020 el diseño de sus oficinas ejecutivas en la primera planta del inmueble, mediante una delicada recuperación del edificio.
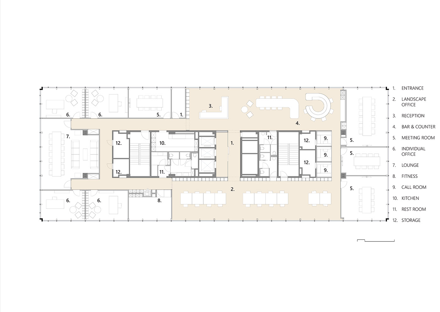
El proyecto requería la demolición de los tabiques existentes para diseñar un espacio de trabajo con una atmósfera de home working. El concepto desarrollado por Studio Farris para las nuevas oficinas llevó a maximizar la interacción con la exuberante transparencia que caracteriza la icónica estructura del edificio Stynen


La nueva sede de Buysse&Partners y la domesticidad de las oficinas en un edificio emblemático de la arquitectura moderna belga
La nueva sede de Buysse & Partners en Amberes es la materialización de una idea de domesticidad del espacio de oficinas, realizada mediante la reinterpretación de una obra extraordinaria: el interior de más de 800 m2 del famoso BP Building, finalizado en 1963 por LeonStynen, uno de los arquitectos belgas más importantes del siglo XX
- #Europa>
- #Bélgica>
- #Arquitectura>
- #Recuperación del edificio>
- #Azienda y Produzione>
- #Oficinas>
- #Remodelación>
- #Interior>
- #Arquitectura>
La nueva organización planimétrica acentúa la partición determinada por la disposición de los cables en la fachada y, al mismo tiempo, da mayor apertura a los espacios de trabajo y a las distintas zonas de descanso, lo que da lugar a una fuerte y continua interacción con el exterior.
Un falso techo de elementos de aluminio lacado en negro acompaña el descubrimiento de las distintas estancias: preponderante en las zonas comunes, donde recorre la longitud del edificio, el falso techo llega también a los espacios cerrados, manteniendo siempre la correspondencia con la modulación de las ventanas y, por tanto, de la solución estructural. El sistema de iluminación sigue la dirección del falso techo

El suelo de los espacios abiertos y de circulación está formado por un parqué cuadrado dispuesto en forma ajedrezada para no determinar una dirección, sino apoyar la modularidad estructural del edificio en ambas direcciones. El revestimiento de los espacios cerrados varía según la función del ambiente: en la cocina un suelo de baldosas a cuadros, en el bañoazulejos tipo metro, en las salas de reuniones una alfombra sigue el patrón de parqué. Las estanterías de madera, también moduladas a partir del plano de Stynen, actúan como separadores en los espacios de trabajo y descanso. La zona de recepción define un espacio abierto que se abre completamente al exterior. Aquí hay una zona de relax que se complementa con un bar y un mostrador para comidas y reuniones informales

El tema de la domesticidad en el espacio de la oficina encuentra su expresión en algunas soluciones que Giuseppe Farris ha desarrollado para dar cuerpo y materialidad a un espacio riguroso: el paso entre una habitación y otra está marcado por un grueso marco de madera negra pulida que, enfatizando una vez más el esquema estructural, añade elementos de confort y elegancia que contribuyen a fomentar la relación entre las habitaciones y la sensación de domesticidad. Lo mismo ocurre con los muros de separación, tratados con cal muerta, que reelaboran, con una sensibilidad cercana a algunas obras de Carlo Scarpa, la materialidad del cemento en el núcleo central del edificio

Galeria
Créditos Fotográficos
Imagen de portada, imágenes artículo y gallery: Martino Pietropoli
Diseños: Studio Farris Architects










