Dopo aver acquistato il BP Building, il gruppo finanziario Buysse & Partners ha nel 2020 incaricato Studio Farris Architects di progettare i suoi uffici direzionali al primo piano dell’immobile, attraverso un delicato recupero dell’edificio. L’intervento ha richiesto la demolizione delle partizioni esistenti per la progettazione di uno spazio di lavoro che fosse caratterizzato da un’atmosfera di home working. Il concetto elaborato da Studio Farris per i nuovi uffici ha portato a massimizzare l’interazione con l’esuberante trasparenza che caratterizza la struttura iconica dell’edificio di Stynen


Il nuovo headquarter di Buysse & Partners e la domesticità dello spazio ufficio in un edificio icona dell’architettura moderna belga
Il nuovo headquarter di Buysse & Partners ad Anversa sono la materializzazione di un’idea di domesticità dello spazio ufficio, realizzata reinterpretando un’opera straordinaria: gli oltre 800 mq interni del celebre BP Building, completato nel 1963 da Leon Stynen, uno dei più grandi architetti belgi del ventesimo secolo
- #Europa>
- #Belgio>
- #Architettura>
- #Recupero edilizio>
- #Azienda e Produzione>
- #Uffici>
- #Restyling>
- #Interior>
- #Architettura>
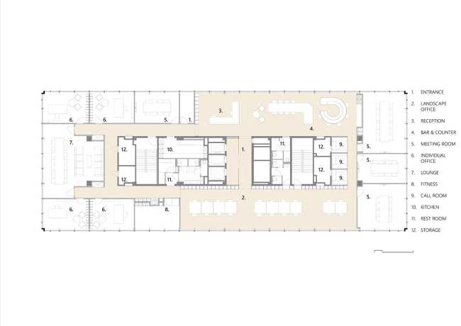
La nuova organizzazione planimetrica mette in evidenza la partizione determinata dalla disposizione dei cavi in facciata e, al tempo stesso, conferisce una maggiore apertura agli spazi di lavoro e ai vari ambienti di relax, dando luogo a una forte e continua interazione con l’esterno. Un controsoffitto in elementi di alluminio laccati di color nero accompagna alla scoperta dei vari ambienti: preponderante nelle aree comuni, dove corre nel senso della lunghezza dell’edificio, il controsoffitto raggiunge anche gli spazi chiusi, sempre mantenendo la corrispondenza con la modulazione delle finestre e quindi della soluzione strutturale. Il sistema di illuminazione segue la direzione del controsoffitto

La pavimentazione degli spazi aperti e di circolazione è realizzata con un parquet quadrato disposto a scacchiera così da non determinare una direzione ma piuttosto assecondare la modularità strutturale dell’edificio in entrambe le direzioni. I rivestimenti degli spazi chiusi varia a seconda della funzione dell’ambiente: in cucina un piastrellato decorato a scacchiera, in bagno piastrelle metropolitana, nelle sale riunione un tappeto continua il disegno del parquet. Scaffalature in legno, anch’esse modulate a partire dalla pianta di Stynen, svolgono la funzione di separatori negli spazi di lavoro e di relax. La reception definisce uno spazio libero che si apre completamente all’esterno. Qui è presente una zona relax che si completa con un bar e un bancone per i pasti e le riunioni informali

Il tema della domesticità nello spazio ufficio trova espressione in alcune soluzioni che Giuseppe Farris ha elaborato per dare corpo e matericità a uno spazio rigoroso: i passaggi tra un ambiente e l’altro sono marcati da uno spesso telaio in legno lucidato nero che, sottolineando ancora una volta lo schema strutturale, aggiunge elementi di confortevolezza e di eleganza che contribuiscono a incentivare le relazioni tra gli ambienti e il senso di domesticità. Lo stesso vale per i muri di separazione, trattati a grassello, che rielaborano, con una sensibilità vicina a alcune opere di Carlo Scarpa, la matericità del cemento presente nel nucleo centrale dell’edificio

Gallery
Foto credits
Immagine di copertina, immagini articolo e gallery: Martino Pietropoli
Disegni: Studio Farris Architects










