La ampliación de la Universidad está en sus puertas: el actual Student Union Building necesitaba ampliar sus espacios y añadir otros nuevos. El proyecto Campus Commons, realizado porIkons 5 Arkitects, debía transformar la imagen de la Universidad de una institución estatal a una imagen única y reconocible para SUNY New Paltz


Nueva "sala de estar" para la Universidad de Nueva York en News Paltz
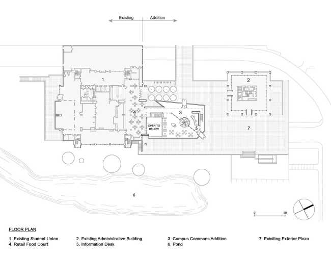
Campus Commons hace realidad la necesidad y el deseo de la Universidad de Nueva York de contar con un espacio que amplíe las salas de reuniones y el patio de comidas existentes y dote a las instalaciones de un nuevo centro recreativo
- #América>
- #Estados Unidos>
- #Arquitectura>
- #Nueva construccion>
- #Educación>
- #Universidad>
- #Metal>
- #Vidrio>
- #Architectures>
- #Arquitectura>

El proyecto se inspira en el paisaje regional único de las montañas Catskill del Estado de Nueva York y es un edificio cristalino cuya forma y superficie recuerdan el carácter tectónico de la montaña Shawangunk de las Catskill, situada justo al lado del emplazamiento

Situada entre dos edificios brutalistas de hormigón existentes, la ampliación de cristal tiene un carácter fresco e icónico, a la par que respeta las estructuras brutalistas de hormigón de mediados del siglo XX adyacentes a la ampliación. El proyecto, al mismo tiempo, está conectado con los edificios existentes y utiliza estos edificios como telón de fondo

El espacio Campus Common es flexible y sin columnas, con una piel de vidrio. Este espacio está centrado en los estudiantes, proporcionándoles un lugar donde pueden reunirse, estudiar, jugar y trabajar en colaboración. Es un lugar para ver y ser vistos

Galeria
Créditos Fotográficos
Imagen de portada, imágenes artículo y gallery: Peter Mauss Esto

















