La esencialidad creativa que redefine el espacio
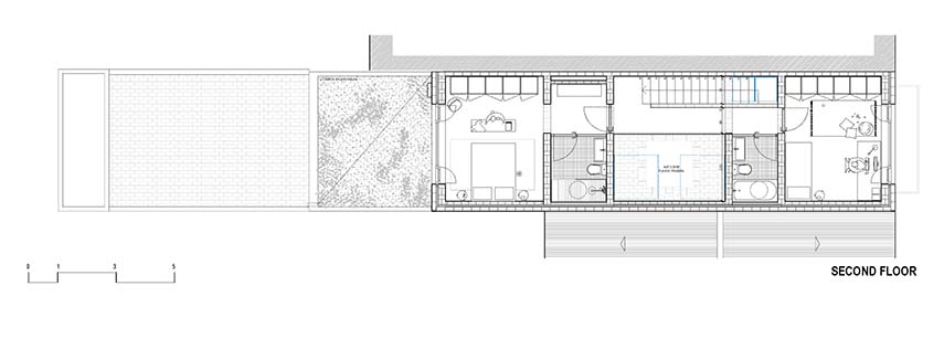
Casa Mariela cobró vida gracias al proyecto de Viva - Casas Sostenibles, un estudio conocido por la realización de proyectos de arquitectura sostenible e innovadora. El presupuesto limitado influyó en las decisiones de diseño, llevando a la eliminación de paredes internas y revestimientos superfluos. La planta estrecha y larga del terreno llevó a los diseñadores a imaginar la casa como una red de espacios interconectados, sin pasillos ni puertas. Los servicios esenciales, como los baños y la cocina, se colocaron a lo largo de las paredes laterales, creando un espacio central abierto que redefine la percepción de los ambientes domésticos.























